Maison neuve à
Bérat
(31370) Référence :
TF2487541_6
Prix du projet : Maison avec Terrain
prix 372 300 €
- 5 pièces
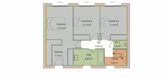
- 4 chambres
- Surface maison 152 m2
Maison de 5 pièces (152 m²) à vendre à Bérat
QUARTIER RECHERCHÉ - MAISON 5 PIÈCES NEUVE
En vente : située à quelques kilomètres de Colomiers, Maisons France Confort Muret vous propose cette maison de 5 pièces de 152 m² et de 690 m² de terrain dans un secteur recherché de Bérat (31370). Elle inclut quatre chambres, une cuisine et deux salles de bains.
Cette maison comporte 2 niveaux. Elle est neuve.
Cette maison est située dans un quartier prisé. L'École Élémentaire Publique se trouve à moins de 10 minutes à pied. Niveau transports, il y a les gares Longages-Noé, Le Fauga et Carbonne à moins de 10 minutes en voiture. Il y a un accès à l'autoroute A64 à 8 km. On trouve une bibliothèque, trois commerces, un bureau de poste et une supérette à quelques minutes à peine.
Elle est proposée à l'achat pour 372 300 € frais annexes à prévoir (notaires sur terrain, raccordements ...).
🎨 Votre maison, votre style :
Personnalisez les plans selon vos besoins et vos envies.
Choisissez parmi nos prestations pour un intérieur qui reflète votre mode de vie et votre budget.
📞 Contactez Maisons France Confort dès aujourd'hui au 05.61.76.07.80 pour découvrir comment faire la maison de vos rêves. Avec plus de 105 ans d'expérience, Maisons France Confort vous accompagne à chaque étape de votre projet.
✨ Maisons France Confort : Bien construire votre futur ✨
Annonce proposée par un Agent Commercial Partenaire.
Mentions légales
Terrain proposé par un partenaire foncier selon disponibilités et autorisation de publicité au prix de 68 900 €. Hors droit d'enregistrement et frais de notaire. Terrain + Maison proposés au prix de 372 300 € (Hors branchements et raccordements, papiers peints, peintures, revêtement de sol dans les chambres. Tarif modifiable sans préavis). Etiquette énergie : A. Différents modèles disponibles pour ce terrain. Assurances et garanties du constructeur (RC professionnelle, décennale, dommage ouvrage, garantie de remboursement de l'acompte, livraison à prix et délai convenu) : https://www.maisons-france-confort.fr/mentions-legales/. HEXAOM Services est enregistré auprès de l'ORIAS en tant que Courtier en financement, Niveau 1, sous le numéro 14001345.Agence Maisons France Confort de Muret (31600)
- Téléphone :
- 05 61 76 07 80
- Adressse :
- 7, allée Niel
31600 Muret, France
