Maison neuve à
Berméricourt (51220) Référence : NG2414832_19

Prix du projet : Maison avec Terrain

prix 359 000 €

  • 6 pièces
  • 3 chambres
  • Surface maison 95 m2

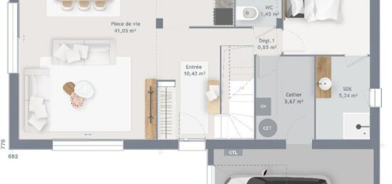
Maison neuve de 95m² à Berméricourt.
Le modèle présenté est Concept PPGI 95. Maison à l'architecture très moderne et design composée d'une grande pièce de vie ouverte sur la cuisine, 3 chambres (dont une suite parentale avec dressing et salle de bain privative), une salle d'eau, deux wc, un cellier et un garage.
La construction traditionnelle aux normes RE2020 de la maison est réalisée en brique et l'ensemble des matériaux utilisés sont de qualité afin de vous assurer un investissement durable.
Terrain constructible de 530m2 à Berméricourt idéalement situé au calme et proche de toutes les commodités (environnement vraiment de qualité), disposant d'une belle façade et entièrement viabilisé.
Berméricourt est une commune recherchée pour son axe direct, ses commodités aux alentours et sa proximité avec Reims, Hermonville, Cormicy, Villers Franqueux, Pouillon, Thil, Chenay, Merfy, Saint Thierry, Merfy, Courcy, Brimont et Loivre.
Pour plus de renseignements vous pouvez me contacter , Nicolas GUILLAUME de l'agence Maisons France Confort de Cormontreuil au 07.77.79.23.59

Mentions légales

Terrain proposé par un partenaire foncier selon disponibilités et autorisation de publicité au prix de 97 000 €. Hors droit d'enregistrement et frais de notaire. Terrain + Maison proposés au prix de 359 000 € (Hors branchements et raccordements, papiers peints, peintures, revêtement de sol dans les chambres. Tarif modifiable sans préavis). Etiquette énergie : A. Différents modèles disponibles pour ce terrain. Assurances et garanties du constructeur (RC professionnelle, décennale, dommage ouvrage, garantie de remboursement de l'acompte, livraison à prix et délai convenu) : https://www.maisons-france-confort.fr/mentions-legales/. HEXAOM Services est enregistré auprès de l'ORIAS en tant que Courtier en financement, Niveau 1, sous le numéro 14001345.

Contactez l'agence de Cormontreuil

03 26 46 40 50

    * Champs obligatoires

    Vos informations sont traitées par HEXAOM et transmises à un conseiller commercial qui vous contactera afin de répondre à votre demande. Les plans et images présentés sur notre site sont la propriété d’HEXAOM et ne peuvent pas être reproduits sans son accord. Pour retrouver notre politique de protection des données personnelles et exercer vos droits conformément à la « loi informatique et liberté » cliquez-ici.