Maison neuve à
Bernay
(27300) Référence :
AV2376598_2
Prix du projet : Maison avec Terrain
prix 198 000 €
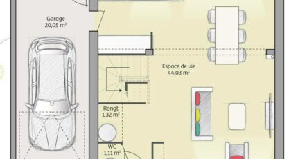
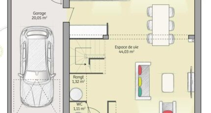
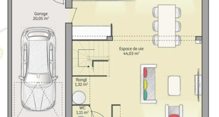
- 6 pièces
- 4 chambres
- Surface maison 91 m2
Projet de construction -
Maisons France Confort pour propose un projet de construction à étage,
Modèle en 4 ch avec de beau espace ,
une pièce de vie confortable pour accueillir la famille
et une salle de bain
Etude complète GRATUITE ET SANS ENGAGEMENT
- Estimation budget global
- Plans personnalisés ou catalogues
- Aide à la recherche de terrain
- Optimisation du projet
Si vous avez un projet, même juste idée contacter moi pour que l'on puisse étudier les possibilité qui s'offre à vous
ANGELIQUE 06.48.23.57.76
Mentions légales
Terrain proposé par un partenaire foncier selon disponibilités et autorisation de publicité au prix de 34 000 €. Hors droit d'enregistrement et frais de notaire. Terrain + Maison proposés au prix de 198 000 € (Hors branchements et raccordements, papiers peints, peintures, revêtement de sol dans les chambres. Tarif modifiable sans préavis). Etiquette énergie : A. Différents modèles disponibles pour ce terrain. Assurances et garanties du constructeur (RC professionnelle, décennale, dommage ouvrage, garantie de remboursement de l'acompte, livraison à prix et délai convenu) : https://www.maisons-france-confort.fr/mentions-legales/. HEXAOM Services est enregistré auprès de l'ORIAS en tant que Courtier en financement, Niveau 1, sous le numéro 14001345.Agence Maisons France Confort de Lisieux (14100)
- Téléphone :
- 02 31 62 91 30
- Adressse :
- 41 boulevard Jeanne d'Arc
14100 Lisieux, France
