Maison neuve à
Bernay (27300) Référence : AV2376738_1

Prix du projet : Maison avec Terrain

prix 242 000 €

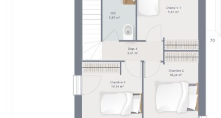
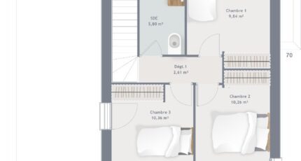
  • 5 pièces
  • 3 chambres
  • Surface maison 90 m2

Projet de construction -

Maisons France Confort pour propose un projet de construction

Modèle en 3 ch avec de beau espace ,
une pièce de vie confortable pour accueillir la famille


Etude complète GRATUITE ET SANS ENGAGEMENT

- Estimation budget global
- Plans personnalisés ou catalogues
- Aide à la recherche de terrain
- Optimisation du projet

Si vous avez un projet, même juste idée contacter moi pour que l'on puisse étudier les possibilité qui s'offre à vous
ANGELIQUE 06.48.23.57.76

Mentions légales

Terrain proposé par un partenaire foncier selon disponibilités et autorisation de publicité au prix de 35 000 €. Hors droit d'enregistrement et frais de notaire. Terrain + Maison proposés au prix de 242 000 € (Hors branchements et raccordements, papiers peints, peintures, revêtement de sol dans les chambres. Tarif modifiable sans préavis). Etiquette énergie : A. Différents modèles disponibles pour ce terrain. Assurances et garanties du constructeur (RC professionnelle, décennale, dommage ouvrage, garantie de remboursement de l'acompte, livraison à prix et délai convenu) : https://www.maisons-france-confort.fr/mentions-legales/. HEXAOM Services est enregistré auprès de l'ORIAS en tant que Courtier en financement, Niveau 1, sous le numéro 14001345.

Contactez l'agence de Lisieux

02 31 62 91 30

    * Champs obligatoires

    Vos informations sont traitées par HEXAOM et transmises à un conseiller commercial qui vous contactera afin de répondre à votre demande. Les plans et images présentés sur notre site sont la propriété d’HEXAOM et ne peuvent pas être reproduits sans son accord. Pour retrouver notre politique de protection des données personnelles et exercer vos droits conformément à la « loi informatique et liberté » cliquez-ici.