Maison neuve à
Berric (56230) Référence : GC2412517_5

Prix du projet : Maison avec Terrain

prix 321 350 €

  • 4 pièces
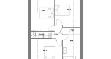
  • 3 chambres
  • Surface maison 89 m2

Berric : maison de 4 pièces (89 m²) en vente
EMPLACEMENT PRIVILÉGIÉ - MAISON 4 PIÈCES NEUVE
À vendre : située à 12 km de la côte atlantique et à 16 km de Vannes, nous vous présentons, bénéficiant d'un emplacement d'exception dans Berric (56230), cette maison de 4 pièces de 89 m² et de 655 m² de terrain. Elle propose trois chambres, une cuisine et deux salles de bains.
Cette maison comporte 2 niveaux. Elle est neuve.
Cette maison se trouve dans un quartier convoité. Il y a l'École Primaire Publique la Lune Verte et l'École Primaire Privée Saint Thuriau à moins de 10 minutes à pied. Niveau transports en commun, on trouve la gare Questembert à moins de 10 minutes en voiture. La nationale N165 est accessible à 6 km. Il y a une bibliothèque, une boulangerie et une boucherie-charcuterie à proximité.
Elle est proposée à l'achat pour 321 350 €.
Contactez notre agence (Germain CHARUEL : 02-97-68-32-50) pour tout renseignement sur la maison, sur les démarches à suivre ou sur les modalités de vente.

Mentions légales

Terrain proposé par un partenaire foncier selon disponibilités et autorisation de publicité au prix de 112 000 €. Hors droit d'enregistrement et frais de notaire. Terrain + Maison proposés au prix de 321 350 € (Hors branchements et raccordements, papiers peints, peintures, revêtement de sol dans les chambres. Tarif modifiable sans préavis). Etiquette énergie : A. Différents modèles disponibles pour ce terrain. Assurances et garanties du constructeur (RC professionnelle, décennale, dommage ouvrage, garantie de remboursement de l'acompte, livraison à prix et délai convenu) : https://www.maisonsdelavenir.com/mentions-legales/.

Contactez l'agence de Vannes

02 97 68 32 50

    * Champs obligatoires

    Vos informations sont traitées par HEXAOM et transmises à un conseiller commercial qui vous contactera afin de répondre à votre demande. Les plans et images présentés sur notre site sont la propriété d’HEXAOM et ne peuvent pas être reproduits sans son accord. Pour retrouver notre politique de protection des données personnelles et exercer vos droits conformément à la « loi informatique et liberté » cliquez-ici.