Maison neuve à
Bessan
(34550) Référence :
LR2479027_3
Prix du projet : Maison avec Terrain
prix 360 900 €
- 5 pièces
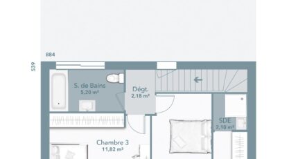
- 3 chambres
- Surface maison 92 m2
VENTE : maison F5 (92 m²) à Bessan
IDÉALEMENT SITUÉE - MAISON 5 PIÈCES NEUVE
En vente à 9 km de la mer Méditerranée et à 10 minutes de Marseillan et d'Agde, et à 15 minutes de Béziers, idéalement située dans Bessan (34550), notre agence Maisons France Confort Montpellier est heureuse de vous proposer cette maison de 5 pièces de 92 m².
C'est une maison de 2 niveaux. Elle compte trois chambres, une cuisine et trois salles de bains. Cette maison est neuve.
Le terrain de la propriété s'étend sur 366 m².
La propriété se trouve dans un quartier prisé. Il y a l'École Maternelle Georges Bégou à moins de 10 minutes à pied. Niveau transports, on trouve les gares Vias et Agde à moins de 10 minutes en voiture. Les autoroutes A9 et A75 sont accessibles à moins de 7 km. Il y a un bassin de natation, un tennis et une poissonnerie à quelques minutes à peine.
Elle est à vendre pour la somme de 360 900 €.
Contactez Lionel ROMERA (06-30-39-77-79) pour toute question sur la maison, sur les modalités de vente ou sur les démarches à suivre.
Annonce proposée par un Agent Commercial Partenaire.
Mentions légales
Terrain proposé par un partenaire foncier selon disponibilités et autorisation de publicité au prix de 141 300 €. Hors droit d'enregistrement et frais de notaire. Terrain + Maison proposés au prix de 360 900 € (Hors branchements et raccordements, papiers peints, peintures, revêtement de sol dans les chambres. Tarif modifiable sans préavis). Etiquette énergie : A. Différents modèles disponibles pour ce terrain. Assurances et garanties du constructeur (RC professionnelle, décennale, dommage ouvrage, garantie de remboursement de l'acompte, livraison à prix et délai convenu) : https://www.maisons-france-confort.fr/mentions-legales/. HEXAOM Services est enregistré auprès de l'ORIAS en tant que Courtier en financement, Niveau 1, sous le numéro 14001345.Agence Maisons France Confort de Montpellier (34000)
- Téléphone :
- 04 67 64 85 11
- Adressse :
- 48, impasse Louis Ferdinand Herold
34000 Montpellier, France
