Maison neuve à
Beuvry
(62660) Référence :
MH2420581_3
Prix du projet : Maison avec Terrain
prix 335 000 €
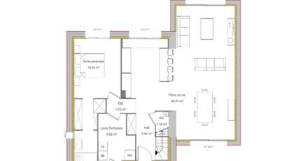
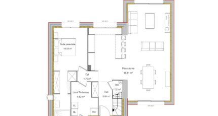
- 8 pièces
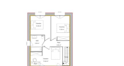
- 4 chambres
- Surface maison 127 m2
Maison T8 (127 m²) en vente à Beuvry
IDÉALEMENT SITUÉE - MAISON 8 PIÈCES NEUVE
À quelques minutes de la gare, notre agence Maisons France Confort Béthune est ravie de vous présenter cette maison de 8 pièces de 127 m² et de 497 m² de terrain idéalement située dans Beuvry (62660). Elle compte quatre chambres, une cuisine et deux salles de bains.
Cette maison comporte 2 niveaux. Elle est neuve.
Elle est située dans un quartier attractif. L'École Maternelle Léo Lagrange et l'École Élémentaire Jean de la Fontaine se trouvent à moins de 10 minutes à pied. Côté transports en commun, il y a la gare Beuvry lès Béthune juste à côté. L'autoroute A26 est accessible à 5 km et dispose de commerces dans les environs.
Elle est à vendre pour la somme de 335 000 €.
Contactez notre agence (HALFTERMEYER Marie : o6-75-79-45-42) pour tout renseignement sur cette maison. Concrétisez vos projets immobiliers avec Maisons France Confort Béthune.
Mentions légales
Terrain proposé par un partenaire foncier selon disponibilités et autorisation de publicité au prix de 62 100 €. Hors droit d'enregistrement et frais de notaire. Terrain + Maison proposés au prix de 335 000 € (Hors branchements et raccordements, papiers peints, peintures, revêtement de sol dans les chambres. Tarif modifiable sans préavis). Etiquette énergie : A. Différents modèles disponibles pour ce terrain. Assurances et garanties du constructeur (RC professionnelle, décennale, dommage ouvrage, garantie de remboursement de l'acompte, livraison à prix et délai convenu) : https://www.maisons-france-confort.fr/mentions-legales/. HEXAOM Services est enregistré auprès de l'ORIAS en tant que Courtier en financement, Niveau 1, sous le numéro 14001345.Agence Maisons France Confort de Béthune (62400)
- Téléphone :
- 03 21 02 07 45
- Adressse :
- 112 bd Jean Moulin
62400 Béthune, France
