Maison neuve à
Beuzeville
(27210) Référence :
AV2319922_3
Prix du projet : Maison avec Terrain
prix 204 000 €
- 6 pièces
- 4 chambres
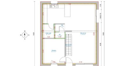
- Surface maison 89 m2
Maison de 89m² habitable
Elle se compose d'une belle pièces de vie ouverte, avec un cellier et une chambre au rdc.
A l'étage 3 chambres et une salle de bain.
Prestations :
Carrelage 45*45
volets roulants encastrée à la maçonnerie + électrique Somfy
Parquet dans les chambres
Pour une étude de votre projet de construction merci de prendre rdv au 06.48.23.57.76 Angélique Vaudry
Mentions légales
Terrain proposé par un partenaire foncier selon disponibilités et autorisation de publicité au prix de 56 000 €. Hors droit d'enregistrement et frais de notaire. Maison proposée, avec un contrat de construction de maison individuelle, dans le cadre de la loi du 19/12/1990, au prix de 148 000 € (Hors branchements et raccordements, papiers peints, peintures, revêtement de sol dans les chambres, qui sont chiffrés dans les travaux qui restent à charge du client. Tarif modifiable sans préavis). Étiquette énergie : A. Différents modèles disponibles pour ce terrain. Assurances et garanties du constructeur comprises (RC professionnelle, décennale, dommage ouvrage).Agence Maisons France Confort de Lisieux (14100)
- Téléphone :
- 02 31 62 91 30
- Adressse :
- 41 boulevard Jeanne d'Arc
14100 Lisieux, France
