Maison neuve à
Biganos
(33380) Référence :
LC582BIGANOS_5
Prix du projet : Maison avec Terrain
prix 380 000 €
- 4 pièces
- 3 chambres
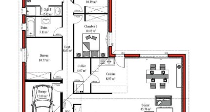
- Surface maison 125 m2
VENTE : maison T4 (125 m²) à Biganos
MAISON 4 PIÈCES NEUVE
À vendre : à 8 km de l'océan Atlantique et à quelques kilomètres de Mérignac, ayez le coup de coeur pour à Biganos (33380), cette maison de 4 pièces de plain-pied de 125 m². Conçue de plain-pied, elle propose trois chambres, une cuisine et une salle de bains.
Le terrain de la propriété est de 582 m².
Cette maison est neuve.
L'École Élementaire Jules Ferry, l'École Maternelle Marcel Pagnol et le Collège Jean Zay se trouvent à moins de 10 minutes à pied. Niveau transports, il y a la gare Biganos Facture à proximité. L'autoroute A660 est accessible à 3 km. On trouve deux tennis, des commerces, trois boulangeries, un bureau de poste, une épicerie et deux boucheries-charcuteries à quelques minutes du bien.
Elle est proposée à l'achat pour 380 000 €.
Contactez notre agence (CHAMPEIL Laurent : 05-57-15-12-37) pour obtenir de plus amples informations sur la maison. Batisoft La Teste-de-Buch vous accompagne dans tous vos projets immobiliers et dans toutes vos démarches.
Mentions légales
Idée de réalisation en modèle prêt à décorer sur l’un de nos terrains partenaires, sous réserve de disponibilités. Voir détails en agence.Agence Batisoft de La Teste-de-Buch (33260)
- Téléphone :
- 05 57 15 12 37
- Adressse :
- 27, Boulevard de Cazaux
33260 La Teste-de-Buch, France
