Maison neuve à
Billy-Berclau
(62138) Référence :
GL2448414_6
Prix du projet : Maison avec Terrain
prix 337 889 €
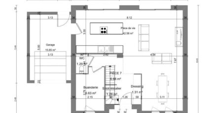
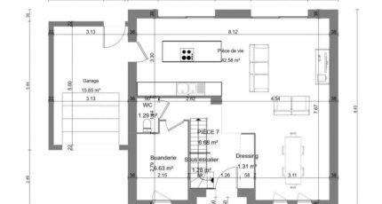
- 6 pièces
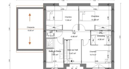
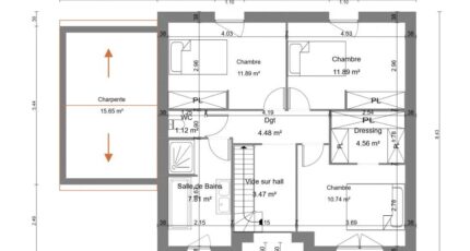
- 3 chambres
- Surface maison 105 m2
VENTE : maison de 6 pièces (105 m²) à Billy-Berclau
IDÉALEMENT SITUÉE - MAISON 6 PIÈCES NEUVE
À quelques kilomètres de la Belgique et à 18 km de Lille, Maisons France Confort Hénin-Beaumont vous propose cette maison de 6 pièces de 105 m² et de 425 m² de terrain en vente idéalement située dans Billy-Berclau (62138).
Cette maison compte 2 niveaux. Elle inclut trois chambres, une cuisine et une salle de bains. Cette maison est neuve.
Elle se trouve dans un quartier recherché. L'École Maternelle Claude Debussy, l'École Élémentaire Jean Jaurès et l'École Élémentaire Jérémie Poteau sont implantées à moins de 10 minutes à pied. Côté transports en commun, il y a 11 gares à moins de 10 minutes en voiture. On trouve une bibliothèque, deux commerces, une épicerie et une boucherie-charcuterie à quelques minutes.
Elle est proposée à l'achat pour 337 889 €.
Contactez notre agence (Grégory LEROY : 06-10-76-67-66) pour tout renseignement sur cette propriété, sur les démarches à suivre ou sur les modalités de vente.
Les terrains sont vendus uniquement dans le but de faire construire avec Maisons France Confort.
Les plans de maisons sont tous réalisés sur mesure avec des possibilités infinies en fonction de vos envies.
Mentions légales
Terrain proposé par un partenaire foncier selon disponibilités et autorisation de publicité au prix de 84 318 €. Hors droit d'enregistrement et frais de notaire. Terrain + Maison proposés au prix de 337 889 € (Hors branchements et raccordements, papiers peints, peintures, revêtement de sol dans les chambres. Tarif modifiable sans préavis). Etiquette énergie : A. Différents modèles disponibles pour ce terrain. Assurances et garanties du constructeur (RC professionnelle, décennale, dommage ouvrage, garantie de remboursement de l'acompte, livraison à prix et délai convenu) : https://www.maisons-france-confort.fr/mentions-legales/. HEXAOM Services est enregistré auprès de l'ORIAS en tant que Courtier en financement, Niveau 1, sous le numéro 14001345.Agence Maisons France Confort de Hénin-Beaumont (62110)
- Téléphone :
- 03 21 14 37 05
- Adressse :
- Chemin de Noyelles
62110 Hénin-Beaumont, France
