Maison neuve à
Billy-Montigny
(62420) Référence :
CD2376078_1
Prix du projet : Maison avec Terrain
prix 317 673 €
- 6 pièces
- 4 chambres
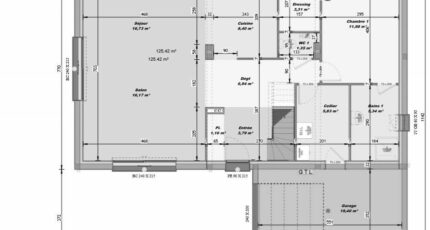
- Surface maison 116 m2
Projet de construction sur la commune de Billy-Montigny en lotissement, terrain viabilisé de 762m2
Billy Montigny se situe à à 15mn de Lens, 24mn de La Bassée et Arras, 30mn de Lille
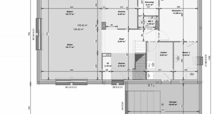
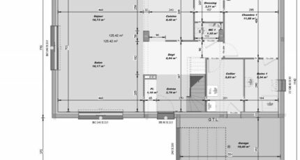
Carole DOLLET Maison France confort vous propose cette maison de 116m2+ garage, elle se compose au rez de chaussée d'un espace de vie de 40m2 complétement ouvert et très lumineux, parfait pour vos moments de détente et de convivialité, une belle suite parentale avec dressing et salle de bains
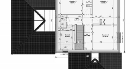
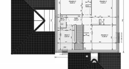
L'étage se compose de 3 belles chambres et d'une salle de bains
Les plus de la maison : un beau garage de 21m2, des menuiseries avec volets roulants motorisés pour plus de confort, un chauffage par pompe à chaleur avec plancher chauffant complet au rez de chaussée, et un système domotique pour une gestion intelligente de votre maison, maison respectueuse de la norme RE2020 garantissant une performance énergétique optimale, une faible empreinte carbone
Elle est située dans un secteur prisé.
Elle est à vendre pour la somme de 317 673 €. (289 786€ si éligibilité à la TVA à 5,5%)
N'hésitez pas à prendre contact avec notre agence (DOLLET Carole : 07-87-32-88-16) pour obtenir de plus amples renseignements sur cette maison ou sur les modalités de vente. Donnez vie à vos projets immobiliers avec Maisons France .
Mentions légales
Terrain proposé par un partenaire foncier selon disponibilités et autorisation de publicité au prix de 86 890 €. Hors droit d'enregistrement et frais de notaire. Terrain + Maison proposés au prix de 317 673 € (Hors branchements et raccordements, papiers peints, peintures, revêtement de sol dans les chambres. Tarif modifiable sans préavis). Etiquette énergie : A. Différents modèles disponibles pour ce terrain. Assurances et garanties du constructeur (RC professionnelle, décennale, dommage ouvrage, garantie de remboursement de l'acompte, livraison à prix et délai convenu) : https://www.maisons-france-confort.fr/mentions-legales/. HEXAOM Services est enregistré auprès de l'ORIAS en tant que Courtier en financement, Niveau 1, sous le numéro 14001345.Agence Maisons France Confort de Hénin-Beaumont (62110)
- Téléphone :
- 03 21 14 37 05
- Adressse :
- Chemin de Noyelles
62110 Hénin-Beaumont, France
