Maison neuve à
Biscarrosse (40600) Référence : CV1894393_2

Prix du projet : Maison avec Terrain

prix 313 200 €

  • 4 pièces
  • 3 chambres
  • Surface maison 85 m2

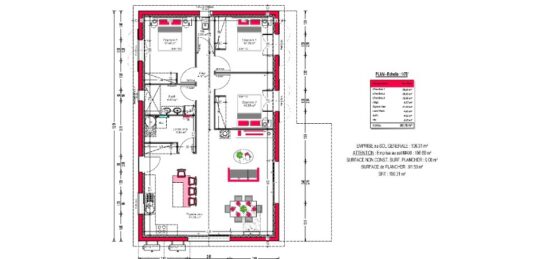
Carine VIENAT des Maisons MCA à Biscarrosse, vous propose d'adapter le modèle Optima, sur un terrain de 435m2, idéalement situé en centre ville de Biscarrosse.

Cette maison possède un grand salon-séjour tourné vers le jardin, une cuisine ouverte avec son cellier attenant, ce qui offre un espace jour de près de 38m2, le coté nuit est composé de 3 chambres avec placards, une salle de bains et wc séparés. Un garage communiquant de 15 m2 vient compléter ce bel ensemble.

Ce modèle saura vous plaire grâce à son agencement idéalement pensé pour votre confort de vie, et l'optimisation des espaces.

Le prix affiché comprend le terrain, les frais de notaire, les frais annexes (raccordements, bornage), et cette maison livrée prête à décorer.

N'hésitez pas à contacter Carine VIENAT au O6.14.11.OO.87 à l'agence MCA de Biscarrosse, afin qu'elle vous guide dans les démarches, et vous accompagne dans ce projet de construction personnalisé.

Contactez l'agence de Biscarrosse

05 35 37 19 66

    * Champs obligatoires

    Vos informations sont traitées par HEXAOM et transmises à un conseiller commercial qui vous contactera afin de répondre à votre demande. Les plans et images présentés sur notre site sont la propriété d’HEXAOM et ne peuvent pas être reproduits sans son accord. Pour retrouver notre politique de protection des données personnelles et exercer vos droits conformément à la « loi informatique et liberté » cliquez-ici.