Maison neuve à 
  Blagnac
 (31700)  Référence :
 XF2290891_5 
Prix du projet : Maison avec Terrain
prix 538 233 €
- 6 pièces
- 4 chambres
- Surface maison 110 m2
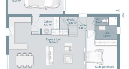
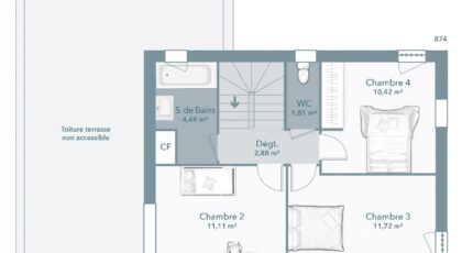
Votre agence Maisons France Confort d'AUCAMVILLE vous propose ce beau projet maison + terrain à BLAGNAC. Le modèle présenté est Ultima 110 GA. Cette maison propose 110m² de surface avec un bel espace jour de 39m², 4 chambres dont une suite parentale, une salle de bains. Un cellier et un garage accolé  de 18m² viennent compléter ce modèle. Le petit plus, sa toiture-terrasse est un atout esthétique et moderne !
La maison se trouve sur une parcelle de 400 m² à 2 minutes des commodités et à 5 minutes de Toulouse. 
Pour toutes informations, contactez l'agence MAISONS FRANCE CONFORT d'AUCAMVILLE au 05 34 43 84 38 .
PRIX : 538 233 € HF 
Annonce proposée par un Agent Commercial Partenaire.
Mentions légales
Terrain proposé par un partenaire foncier selon disponibilités et autorisation de publicité au prix de 300 000 €. Hors droit d'enregistrement et frais de notaire. Maison proposée, avec un contrat de construction de maison individuelle, dans le cadre de la loi du 19/12/1990, au prix de 238 233 € (Hors branchements et raccordements, papiers peints, peintures, revêtement de sol dans les chambres, qui sont chiffrés dans les travaux qui restent à charge du client. Tarif modifiable sans préavis). Étiquette énergie : A. Différents modèles disponibles pour ce terrain. Assurances et garanties du constructeur comprises (RC professionnelle, décennale, dommage ouvrage).Agence Maisons France Confort de Aucamville (31140)
- Téléphone :
- 05 34 43 84 38
- Adressse :
-  17 chemin Bellegarrigues
 31140 Aucamville, France
 
  
  
  
  
  
  
  
  
  
 