Maison neuve à
Blanquefort (33290) Référence : DC2466155_1

Prix du projet : Maison avec Terrain

prix 494 030 €

  • 4 pièces
  • 3 chambres
  • Surface maison 112 m2

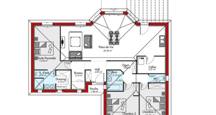
VENTE d'une maison de 4 pièces (112 m²) à Blanquefort
IDÉALEMENT SITUÉE - MAISON 4 PIÈCES NEUVE
À 51 km de l'océan Atlantique et à 7 km de Bordeaux, nous vous proposons cette maison de 4 pièces de plain-pied de 112 m² et de 1 700 m² de terrain idéalement située dans Blanquefort (33290).
Son intérieur est composé de trois chambres, d'une cuisine et d'une salle de bains. Cette maison est neuve.
Cette maison se situe dans un secteur prisé. On trouve des écoles de tous types à moins de 10 minutes à pied. Niveau transports en commun, il y a sept gares à moins de 10 minutes en voiture. Il y a un accès à l'autoroute A630 à 3 km. On trouve un bassin de natation, un tennis, des commerces, deux boucheries-charcuteries, une épicerie et un bureau de poste dans les environs.
Elle est proposée à l'achat pour 494 030 €.
Contactez David CAZAUBON (O6-11-78-42-56) pour obtenir de plus amples informations sur la maison, sur les démarches à suivre ou sur les modalités de vente. Batisoft Bordeaux est là pour vous accompagner à toutes les étapes de votre projet.

Mentions légales

Idée de réalisation en modèle prêt à décorer sur l’un de nos terrains partenaires, sous réserve de disponibilités. Voir détails en agence.

Contactez l'agence de Bordeaux

05 35 37 13 70

    * Champs obligatoires

    Vos informations sont traitées par HEXAOM et transmises à un conseiller commercial qui vous contactera afin de répondre à votre demande. Les plans et images présentés sur notre site sont la propriété d’HEXAOM et ne peuvent pas être reproduits sans son accord. Pour retrouver notre politique de protection des données personnelles et exercer vos droits conformément à la « loi informatique et liberté » cliquez-ici.