Maison neuve à
Boisseron (34160) Référence : LR2455167_4

Prix du projet : Maison avec Terrain

prix 366 000 €

  • 5 pièces
  • 3 chambres
  • Surface maison 92 m2

VENTE : maison T5 (92 m²) à Boisseron

IDÉALEMENT SITUÉE - MAISON 5 PIÈCES NEUVE

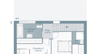
À Boisseron (34160), à 7minutes de Sommières, à 15 minutes de Lunel, 25 minutes de La grande motte, 35 minutes de Nîmes, découvrez cette maison de 5 pièces de 92 m² et de 364 m² de terrain en vente idéalement située dans Boisseron (34160). Elle comporte trois chambres, une cuisine et trois salles de bains.
Cette maison compte 2 niveaux. Elle est neuve.
Cette maison se trouve dans un secteur attractif. Il y a des établissements scolaires primaires à moins de 10 minutes à pied,, comme l'École Bleue et une structure d'accueil pour les enfants en bas âge. Côté transports en commun, on trouve quatre gares à moins de 10 minutes en voiture. L'autoroute A9 est accessible à 7 km. Il y a un tennis et quatre commerces à proximité.
Son prix de vente est de 366 000 €.
Contactez notre agence (Lionel ROMERA : 06-30-39-77-79) pour obtenir de plus amples informations sur la maison ou sur les modalités de vente. Maisons France Confort Montpellier est là pour vous accompagner dans toutes vos démarches.

Annonce proposée par un Agent Commercial Partenaire.

Mentions légales

Terrain proposé par un partenaire foncier selon disponibilités et autorisation de publicité au prix de 146 900 €. Hors droit d'enregistrement et frais de notaire. Terrain + Maison proposés au prix de 366 000 € (Hors branchements et raccordements, papiers peints, peintures, revêtement de sol dans les chambres. Tarif modifiable sans préavis). Etiquette énergie : A. Différents modèles disponibles pour ce terrain. Assurances et garanties du constructeur (RC professionnelle, décennale, dommage ouvrage, garantie de remboursement de l'acompte, livraison à prix et délai convenu) : https://www.maisons-france-confort.fr/mentions-legales/. HEXAOM Services est enregistré auprès de l'ORIAS en tant que Courtier en financement, Niveau 1, sous le numéro 14001345.

Contactez l'agence de Montpellier

04 67 64 85 11

    * Champs obligatoires

    Vos informations sont traitées par HEXAOM et transmises à un conseiller commercial qui vous contactera afin de répondre à votre demande. Les plans et images présentés sur notre site sont la propriété d’HEXAOM et ne peuvent pas être reproduits sans son accord. Pour retrouver notre politique de protection des données personnelles et exercer vos droits conformément à la « loi informatique et liberté » cliquez-ici.