Maison neuve à
Boissy-le-Châtel
(77169) Référence :
CY2281924_1
Prix du projet : Maison avec Terrain
prix 280 000 €
- 5 pièces
- 3 chambres
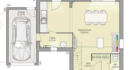
- Surface maison 90 m2
Boissy-le-Châtel : maison T5 (90 m²) à vendre
PROCHE DE MEAUX - MAISON 5 PIÈCES NEUVE
À vendre : à côté du Transilien P (gare de Coulommiers, 1 h de Paris), nous vous présentons cette maison de 5 pièces de 90 m² et de 715 m² de terrain à Boissy-le-Châtel (77169). Son intérieur propose trois chambres, une cuisine et une salle de bains.
Cette maison compte 2 niveaux. Elle est neuve.
Il y a l'École Maternelle Etienne Dumas et l'École Élémentaire la Mare Garenne dans la commune. Niveau transports en commun, on trouve les gares Coulommiers et Mouroux à moins de 10 minutes en voiture. On trouve un tennis et un supermarché à proximité.
Son prix de vente est de 280 000 €.
Prenez contact avec Cedric YAHIAOUI (tél : 06-66-57-00-63) pour toute question sur cette maison ou sur les démarches à suivre. Donnez vie à vos projets immobiliers avec Maisons France Confort Magny-le-Hongre.
Annonce proposée par un Agent Commercial Partenaire.
Mentions légales
Terrain proposé par un partenaire foncier selon disponibilités et autorisation de publicité au prix de 105 000 €. Hors droit d'enregistrement et frais de notaire. Maison proposée, avec un contrat de construction de maison individuelle, dans le cadre de la loi du 19/12/1990, au prix de 175 000 € (Hors branchements et raccordements, papiers peints, peintures, revêtement de sol dans les chambres, qui sont chiffrés dans les travaux qui restent à charge du client. Tarif modifiable sans préavis). Étiquette énergie : A. Différents modèles disponibles pour ce terrain. Assurances et garanties du constructeur comprises (RC professionnelle, décennale, dommage ouvrage).Agence Maisons France Confort de Magny-le-Hongre (77700)
- Téléphone :
- 01 84 80 92 96
- Adressse :
- 11 rue de Courtalin
77700 Magny-le-Hongre, France
