Maison neuve à
Bollène
(84500) Référence :
OP2403250_2
Prix du projet : Maison avec Terrain
prix 340 489 €
- 4 pièces
- 3 chambres
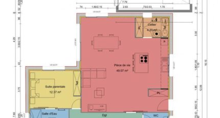
- Surface maison 106 m2
MAISONS FRANCE CONFORT vous propose cette maison pensée pour vous !!!
Le modèle présenté sur le terrain, d'architecture contemporaine en L, intégrant des menuiseries grises anthracite allie confort et esthétique.
Dans une superficie de 106 m2 vous y trouverez une entrée avec rangement, un bel espace de vie, une cuisine, une salle de bain, 3 chambres, et un cellier. Le tout dans une maison fonctionnelle, agréable et répondant à la norme RE 2020. Cette maison dispose également d'un garage, totalement accessible de la maison.
Vous avez le coup de coeur pour cette maison !
Votre conseiller en construction Olivier PUAUX 06.01.46.37.15 MAISONS FRANCE CONFORT se tient à votre disposition pour en savoir plus à propos de cette habitation, en découvrir d'autres ou bien même créer votre projet personnalisé.
Mentions légales
Terrain proposé par un partenaire foncier selon disponibilités et autorisation de publicité au prix de 119 500 €. Hors droit d'enregistrement et frais de notaire. Terrain + Maison proposés au prix de 340 489 € (Hors branchements et raccordements, papiers peints, peintures, revêtement de sol dans les chambres. Tarif modifiable sans préavis). Etiquette énergie : A. Différents modèles disponibles pour ce terrain. Assurances et garanties du constructeur (RC professionnelle, décennale, dommage ouvrage, garantie de remboursement de l'acompte, livraison à prix et délai convenu) : https://www.maisons-france-confort.fr/mentions-legales/. HEXAOM Services est enregistré auprès de l'ORIAS en tant que Courtier en financement, Niveau 1, sous le numéro 14001345.Agence Maisons France Confort de Montélimar (26200)
- Téléphone :
- 04 75 92 40 32
- Adressse :
- Bd du Président François Mitterrand
26200 Montélimar, France
