Maison neuve à
Bon-Encontre
(47240) Référence :
HC2305370_3
Prix du projet : Maison avec Terrain
prix 288 000 €
- 3 pièces
- 2 chambres
- Surface maison 107 m2
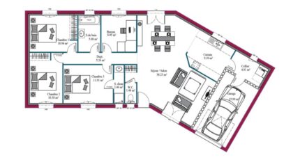
VENTE : maison en V, 5 pièces 107m²
Maison T5 à Bon-Encontre (47240)
Idéalement située, proche d'Agen. A proximité des commerces, écoles et accès autoroute.
▪️ Modèle Garonne :
- 3 chambres avec placards dont suite parentale
- 1 bureau
- Grand salon/séjour lumineux
- Cuisine ouverte avec cellier communiquant au garage
- DPE : A (norme RE2020)
- Modèle personnalisable
- CCMI et garantie de livraison
Chiffrage projet réalisé sur la base d'une maison prêt à décorer, hors frais de notaire.
Pour toute information sur la maison, sur les modalités de vente ou sur les démarches à suivre, contactez Hugo Chambon O786297098
Agence Maisons de la Côte Atlantique de Boé (47550)
- Téléphone :
- 05 64 25 07 47
- Adressse :
- 111 Avenue de bigorre
47550 Boé, France
