Maison neuve à
Bonnetan
(33370) Référence :
DC2478155_2
Prix du projet : Maison avec Terrain
prix 326 410 €
- 5 pièces
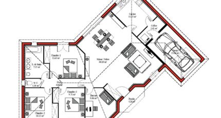
- 3 chambres
- Surface maison 112 m2
Maison F5 (112 m²) à vendre à Bonnetan
IDÉALEMENT SITUÉE - MAISON 5 PIÈCES NEUVE
À vendre à 66 km de l'océan Atlantique et à 18 km de Bordeaux, idéalement située dans Bonnetan (33370), nous sommes ravis de vous proposer cette maison de 5 pièces de plain-pied de 112 m².
Son intérieur est composé de trois chambres, d'une cuisine et d'une salle de bains. Cette maison est neuve.
Le terrain du bien est de 800 m².
Cette maison est située dans un secteur recherché. On trouve l'École Primaire Chante Rainette à moins de 10 minutes à pied. L'autoroute A630 et les nationales N89 et N230 sont accessibles à moins de 10 km.
Son prix de vente est de 326 410 €.
Contactez David CAZAUBON (O6-11-78-42-56) pour toute question sur la maison ou sur les modalités de vente.
Mentions légales
Idée de réalisation en modèle prêt à décorer sur l’un de nos terrains partenaires, sous réserve de disponibilités. Voir détails en agence.Agence Batisoft de Bordeaux (33000)
- Téléphone :
- 05 35 37 13 70
- Adressse :
- Village Homexpo - Parc des expositions
33000 Bordeaux, France
