Maison neuve à
Bonrepos-Riquet
(31590) Référence :
AL2477698_2
Prix du projet : Maison avec Terrain
prix 384 000 €
- 5 pièces
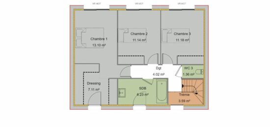
- 3 chambres
- Surface maison 95 m2
Terrain viabilisé d'environ 500 m² + maison California 95 à construire vers la commune de BONREPOS-RIQUET. L'excellence à portée de main avec Maisons France Confort !
Sur ce terrain viabilisé et idéalement situé, optez pour la California 95, un modèle moderne et fonctionnel de 95 m². Avec trois chambres, un grand espace de vie ouvert et un garage intégré, cette maison est parfaite pour une vie familiale épanouie et un confort quotidien.
Pourquoi choisir Maisons France Confort ?
Leader de la construction de maisons individuelles en France
California 95 : design épuré, optimisation de l'espace et performance énergétique
Accompagnement complet : de la recherche du terrain à la remise des clés
Qualité et fiabilité : une maison pensée pour durer, avec un suivi personnalisé à chaque étape
Ne laissez pas passer cette opportunité !
Prix terrain + maison : 384 000 € HF
Contactez-nous dès aujourd'hui pour une étude gratuite et découvrez comment réaliser votre projet immobilier avec le leader de la construction en France.
Agence Maisons France Confort d'Aucamville.
Annonce proposée par un Agent Commercial Partenaire.
Mentions légales
Terrain proposé par un partenaire foncier selon disponibilités et autorisation de publicité au prix de 125 000 €. Hors droit d'enregistrement et frais de notaire. Terrain + Maison proposés au prix de 384 000 € (Hors branchements et raccordements, papiers peints, peintures, revêtement de sol dans les chambres. Tarif modifiable sans préavis). Etiquette énergie : A. Différents modèles disponibles pour ce terrain. Assurances et garanties du constructeur (RC professionnelle, décennale, dommage ouvrage, garantie de remboursement de l'acompte, livraison à prix et délai convenu) : https://www.maisons-france-confort.fr/mentions-legales/. HEXAOM Services est enregistré auprès de l'ORIAS en tant que Courtier en financement, Niveau 1, sous le numéro 14001345.Agence Maisons France Confort de Aucamville (31140)
- Téléphone :
- 05 34 43 84 38
- Adressse :
- 17 chemin Bellegarrigues
31140 Aucamville, France
