Maison neuve à
Bougue
(40090) Référence :
FP2477949_2
Prix du projet : Maison avec Terrain
prix 206 600 €
- 4 pièces
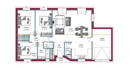
- 3 chambres
- Surface maison 90 m2
Frédéric PINTO des Maisons MCA, vous propose le modèle Optima, implanté sur cette agréable parcelle de 500m², sur la commune de Bougue, à quelques minutes de Mont de Marsan.
Cette maison possède un grand salon-séjour tourné vers le jardin, une cuisine ouverte avec son cellier attenant, ce qui offre un espace jour de plus de 41m2. Le coté nuit est composé de 3 chambres avec placards, une salle de bains et wc séparés. Un garage communiquant de 15 m2 vient compléter ce bel ensemble.
Ce modèle saura vous plaire grâce à son agencement idéalement pensé pour votre confort de vie, et l'optimisation des espaces.
Ce plan reste personnalisable afin de s'adapter à votre mode de vie.
N'attendez plus, contactez vite Frédéric PINTO à l'agence commerciale MCA de Mont de Marsan, afin qu'il vous guide dans les démarches et vous accompagne dans votre projet de construction personnalisé.
*prix frais de notaire inclus, maison prête à décorer, hors frais de raccordements.
Mentions légales
Idée de réalisation en modèle prêt à décorer sur l'un de nos terrains partenaires, sous réserve de disponibilités. Voir détails en agence.Agence Maisons de la Côte Atlantique de Mont-de-Marsan (40000)
- Téléphone :
- 05 35 37 90 02
- Adressse :
- 2 rue de la ferme de Beillet
40000 Mont-de-Marsan, France
