Maison neuve à 
  Bouliac
 (33270)  Référence :
 AC2280694_2 
Prix du projet : Maison avec Terrain
prix 592 000 €
- 4 pièces
- 3 chambres
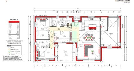
- Surface maison 120 m2
Projet de Maison neuve à construire de 120 m² + garage sur terrain 1 092 m² - Bouliac
À Bouliac (33270), dans un lotissement boisé recherché, devenez propriétaire de cette maison neuve sur mesure de 120 m² comprenant :
2 chambres spacieuses dont une suite parentale avec SDE et dressing
1 bureau pouvant être utilisé comme une chambre
Un grand séjour ouvert et lumineux
Garage accolé
Construction aux normes RE2020
Le tout sur une parcelle de 1 092 m² dans un environnement calme, à seulement quelques minutes de Bordeaux.
Projet personnalisable avec Alpha Constructions - Créon.
Contactez : Alexandra CHAUVET - O6 47 73 30 95
ℹ Terrain proposé par un partenaire foncier selon disponibilité. Projet de construction sur mesure avec Alpha Constructions. Illustrations et données non contractuelles. Non soumis au DPE. Différents modèles disponibles.
Mentions légales
Terrain proposé par un partenaire foncier selon disponibilité dans le cadre d’un projet de construction avec Alpha Constructions. Les descriptions, photographies, surfaces et prix illustrant l’annonce sont fournies à titre indicatif et ne sont pas contractuels. Non soumis au DPE. Différents modèles disponibles.Agence Alpha Constructions de Créon (33670)
- Téléphone :
- 05 56 38 62 03
- Adressse :
-  1 chemin de Riboutet
 33670 Créon, France
 
  
  
  
  
  
 