Maison neuve à
Bourg-Saint-Andéol
(07700) Référence :
OP2390667_1
Prix du projet : Maison avec Terrain
prix 411 000 €
- 5 pièces
- 4 chambres
- Surface maison 129 m2
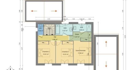
Maison Bastide - 129,67 m² : le charme du traditionnel et le confort du moderne
Découvrez le modèle Bastide, une maison traditionnelle du Sud de la France de 129,67 m² qui séduit par son élégance et ses volumes généreux.
Au rez-de-chaussée, profitez d'une vaste pièce de vie lumineuse de 49,37 m² avec cuisine ouverte sur salle à manger et salon, complétée par un cellier attenant à la cuisine et au garage. Vous bénéficierez également d'une suite parentale indépendante avec dressing, salle d'eau et WC.
À l'étage, le palier dessert deux chambres confortables, une salle de bains avec WC, ainsi qu'une belle suite parentale avec dressing et salle d'eau privative.
Cette maison associe authenticité et modernité, avec de nombreuses options pour s'adapter à vos envies : volets battants pour l'esthétique, volets roulants électriques, centralisation des ouvertures, solutions domotiques, pompe à chaleur avec plancher chauffant... autant d'atouts pour un confort optimal.
Pour plus d'informations sur ce modèle ou découvrir d'autres projets personnalisables, contactez dès aujourd'hui :
Olivier PUAUX - 06 01 46 37 15
Maisons France Confort
Je vous accompagne dans toutes les étapes de votre projet de construction afin de bâtir la maison qui vous ressemble.
Mentions légales
Terrain proposé par un partenaire foncier selon disponibilités et autorisation de publicité au prix de 98 000 €. Hors droit d'enregistrement et frais de notaire. Terrain + Maison proposés au prix de 411 000 € (Hors branchements et raccordements, papiers peints, peintures, revêtement de sol dans les chambres. Tarif modifiable sans préavis). Etiquette énergie : A. Différents modèles disponibles pour ce terrain. Assurances et garanties du constructeur (RC professionnelle, décennale, dommage ouvrage, garantie de remboursement de l'acompte, livraison à prix et délai convenu) : https://www.maisons-france-confort.fr/mentions-legales/. HEXAOM Services est enregistré auprès de l'ORIAS en tant que Courtier en financement, Niveau 1, sous le numéro 14001345.Agence Maisons France Confort de Montélimar (26200)
- Téléphone :
- 04 75 92 40 32
- Adressse :
- Bd du Président François Mitterrand
26200 Montélimar, France
