Maison neuve à
Bouvaincourt-sur-Bresle
(80220) Référence :
DD_eu43_06-3_3
Prix du projet : Maison avec Terrain
prix 188 400 €
- 4 pièces
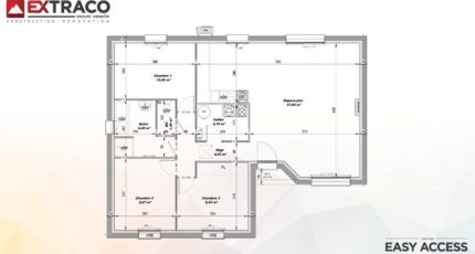
- 3 chambres
- Surface maison 84 m2
VENTE : maison de 4 pièces (84 m²) à Bouvaincourt-sur-Bresle
MAISON 4 PIÈCES NEUVE
À 9 km de la Manche, à vendre à Bouvaincourt-sur-Bresle (80220), nous vous présentons cette maison de 4 pièces de plain-pied de 84 m².
Son intérieur dispose de trois chambres, d'une cuisine et d'une salle de bains. Cette maison est neuve.
Le terrain du bien s'étend sur 953 m².
Il y a l'École Primaire École des Etangs à moins de 10 minutes à pied. Côté transports en commun, on trouve trois gares (Eu, Longroy-Gamaches et Le Tréport-Mers-les-Bains) à moins de 10 minutes en voiture. Il y a un accès à l'autoroute A28 à 16 km. Il y a une bibliothèque et une boulangerie à quelques minutes à peine.
Son prix de vente est de 188 400 €.
N'hésitez pas à prendre contact avec Delphine DERULLES (06-67-13-79-40) pour tout renseignement sur la maison, sur les modalités de vente ou sur les démarches à suivre. Les Maisons Extraco Eu vous accompagne dans tous vos projets immobiliers et à toutes les étapes de votre projet.