Maison neuve à
Bragayrac
(31470) Référence :
CC2428018_1
Prix du projet : Maison avec Terrain
prix 364 025 €
- 4 pièces
- 3 chambres
- Surface maison 110 m2
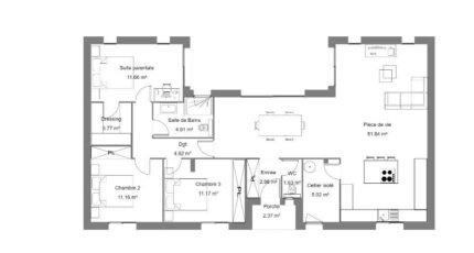
Maison F4 (110 m²) en vente à Bragayrac
PROCHE DE COLOMIERS - MAISON 4 PIÈCES NEUVE
À vendre à 25 km de Colomiers, découvrez cette maison de 4 pièces de plain-pied de 110 m² à Bragayrac (31470).
Son intérieur se divise en trois chambres, une cuisine et une salle de bains. La maison est neuve.
Le terrain du bien s'étend sur 1 200 m².
Elle est proposée à l'achat pour 364 025 €.
Prenez contact avec notre agence pour obtenir de plus amples informations sur cette maison ou sur les démarches à suivre.
Faites de vos projets immobiliers une réalité avec Maisons France Confort Tournefeuille 05.61.16.47.77.
Hors frais annexes.
Annonce proposée par un Agent Commercial Partenaire.
Mentions légales
Terrain proposé par un partenaire foncier selon disponibilités et autorisation de publicité au prix de 110 000 €. Hors droit d'enregistrement et frais de notaire. Terrain + Maison proposés au prix de 364 025 € (Hors branchements et raccordements, papiers peints, peintures, revêtement de sol dans les chambres. Tarif modifiable sans préavis). Etiquette énergie : A. Différents modèles disponibles pour ce terrain. Assurances et garanties du constructeur (RC professionnelle, décennale, dommage ouvrage, garantie de remboursement de l'acompte, livraison à prix et délai convenu) : https://www.maisons-france-confort.fr/mentions-legales/. HEXAOM Services est enregistré auprès de l'ORIAS en tant que Courtier en financement, Niveau 1, sous le numéro 14001345.Agence Maisons France Confort de Tournefeuille (31170)
- Téléphone :
- 05 61 16 47 77
- Adressse :
- 114 chemin de Larramet
31170 Tournefeuille, France
