Maison neuve à
Brandivy (56390) Référence : AS2307211_3

Prix du projet : Maison avec Terrain

prix 259 000 €

  • 5 pièces
  • 4 chambres
  • Surface maison 88 m2

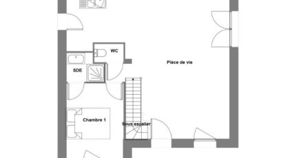
Maison F5 (88 m²) en vente à Brandivy
IDÉALEMENT SITUÉE - MAISON 5 PIÈCES NEUVE
À vendre : localisée à 20 km de l'océan Atlantique et à 19 km de Vannes, nous vous présentons cette maison de 5 pièces de 88 m² et de 635 m² de terrain idéalement située dans Brandivy (56390).
C'est une maison de 2 niveaux. Elle propose quatre chambres, une cuisine et une salle de bains. La maison est neuve.
Cette maison est située dans un secteur prisé. L'École Primaire Publique la Petite Colline est implantée à moins de 10 minutes à pied. Les nationales N165 et N24 sont accessibles à moins de 14 km. Il y a un commerce à proximité de la maison.
Elle est proposée à l'achat pour 259 000 €.
Contactez notre agence (SPECKHALS Amaury : 02-97-68-32-50) pour obtenir de plus amples informations sur la maison ou sur les modalités de vente.

Mentions légales

Maisons de l’Avenir, constructeur de maisons individuelles, propose en collaboration avec ses partenaires fonciers, une sélection de terrains constructibles, selon disponibilité, pour la construction de maisons neuves définies par le constructeur, avec un contrat de construction de maison individuelle, dans le cadre de la loi du 19/12/1990. Prix net, hors frais notariés, d'enregistrement et de publicité foncière

Terrain proposé au prix de : 80 000 €

Maison proposée au prix de : 179 000 €

Etiquette énergie : A. Assurances et garanties du constructeur (RC professionnelle, décennale, dommage ouvrage, Garantie de livraison à prix et délai convenu). https://www.maisonsdelavenir.com/mentions-legales/

Contactez l'agence de Vannes

02 97 68 32 50

    * Champs obligatoires

    Vos informations sont traitées par HEXAOM et transmises à un conseiller commercial qui vous contactera afin de répondre à votre demande. Les plans et images présentés sur notre site sont la propriété d’HEXAOM et ne peuvent pas être reproduits sans son accord. Pour retrouver notre politique de protection des données personnelles et exercer vos droits conformément à la « loi informatique et liberté » cliquez-ici.