Maison neuve à
Brax
(31490) Référence :
CE2394088_1
Prix du projet : Maison avec Terrain
prix 385 478 €
- 4 pièces
- 3 chambres
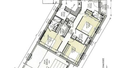
- Surface maison 125 m2
Brax : maison T4 (125 m²) en vente avec l'agence Maisons France Confort de Tournefeuille au 05.61.16.47.77
PROCHE GARE - MAISON 4 PIÈCES NEUVE
En vente à deux pas de Toulouse, Maisons France Confort Tournefeuille vous présente cette maison de 4 pièces de plain-pied de 125 m² et de 500 m² de terrain, dans Brax (31490), proche de la gare.
Conçue de plain-pied, elle est composée de trois chambres, d'une cuisine et de deux salles de bains. Cette maison est neuve.
Une école primaire est implantée dans le quartier. Niveau transports en commun, il y a la gare Brax-Léguevin à moins de 10 minutes à pied. La nationale N124 est accessible à 4 km. On trouve un tennis, une bibliothèque, un commerce, deux boulangeries, une boucherie-charcuterie et une supérette à proximité.
Elle est à vendre pour la somme de 385 478 €.
N'hésitez pas à prendre contact avec l'agence Maisons France Confort de Tournefeuille au 05.61.16.47.77 pour toute question sur la maison. Maisons France Confort Tournefeuille est là pour vous accompagner à toutes les étapes de l'achat.
Annonce proposée par un Agent Commercial Partenaire.
Mentions légales
Terrain proposé par un partenaire foncier selon disponibilités et autorisation de publicité au prix de 115 000 €. Hors droit d'enregistrement et frais de notaire. Terrain + Maison proposés au prix de 385 478 € (Hors branchements et raccordements, papiers peints, peintures, revêtement de sol dans les chambres. Tarif modifiable sans préavis). Etiquette énergie : A. Différents modèles disponibles pour ce terrain. Assurances et garanties du constructeur (RC professionnelle, décennale, dommage ouvrage, garantie de remboursement de l'acompte, livraison à prix et délai convenu) : https://www.maisons-france-confort.fr/mentions-legales/. HEXAOM Services est enregistré auprès de l'ORIAS en tant que Courtier en financement, Niveau 1, sous le numéro 14001345.Agence Maisons France Confort de Tournefeuille (31170)
- Téléphone :
- 05 61 16 47 77
- Adressse :
- 114 chemin de Larramet
31170 Tournefeuille, France
