Maison neuve à
Bray-sur-Seine (77480) Référence : CY2430007_1

Prix du projet : Maison avec Terrain

prix 209 000 €

  • 5 pièces
  • 3 chambres
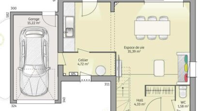
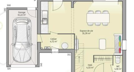
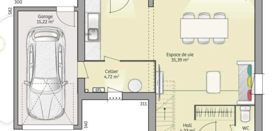
  • Surface maison 90 m2

VENTE d'une maison T5 (90 m²) à Bray-sur-Seine
MAISON 5 PIÈCES NEUVE - PROCHE DE SENS
En vente : à 25 km de Sens, Maisons France Confort Magny-le-Hongre vous propose à Bray-sur-Seine (77480), cette maison de 5 pièces de 90 m².
C'est une maison de 2 niveaux. Elle offre trois chambres, une cuisine et une salle de bains. Cette maison est neuve.
Le terrain de la propriété s'étend sur 1 126 m².
Il y a le Collège Jean Rostand et l'École Primaire Jehan de Brie à moins de 10 minutes à pied. On trouve une bibliothèque, un bassin de natation, un tennis, trois boulangeries, des commerces, quatre supermarchés, une épicerie et un bureau de poste à quelques minutes à peine. Le marché Place de la Halle a lieu chaque vendredi matin.
Elle est proposée à l'achat pour 209 000 €.
Contactez notre agence (Cedric YAHIAOUI : 06-66-57-00-63) pour plus d'informations sur la maison ou sur les démarches à suivre.

Annonce proposée par un Agent Commercial Partenaire.

Mentions légales

Terrain proposé par un partenaire foncier selon disponibilités et autorisation de publicité au prix de 49 000 €. Hors droit d'enregistrement et frais de notaire. Terrain + Maison proposés au prix de 209 000 € (Hors branchements et raccordements, papiers peints, peintures, revêtement de sol dans les chambres. Tarif modifiable sans préavis). Etiquette énergie : A. Différents modèles disponibles pour ce terrain. Assurances et garanties du constructeur (RC professionnelle, décennale, dommage ouvrage, garantie de remboursement de l'acompte, livraison à prix et délai convenu) : https://www.maisons-france-confort.fr/mentions-legales/. HEXAOM Services est enregistré auprès de l'ORIAS en tant que Courtier en financement, Niveau 1, sous le numéro 14001345.

Contactez l'agence de Magny-le-Hongre

01 84 80 92 96

    * Champs obligatoires

    Vos informations sont traitées par HEXAOM et transmises à un conseiller commercial qui vous contactera afin de répondre à votre demande. Les plans et images présentés sur notre site sont la propriété d’HEXAOM et ne peuvent pas être reproduits sans son accord. Pour retrouver notre politique de protection des données personnelles et exercer vos droits conformément à la « loi informatique et liberté » cliquez-ici.