Maison neuve à
Bréchaumont
(68210) Référence :
FB2417871_6
Prix du projet : Maison avec Terrain
prix 355 000 €
- 4 pièces
- 3 chambres
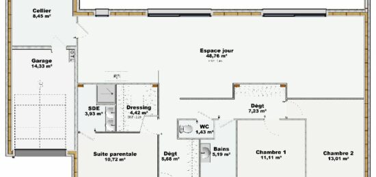
- Surface maison 110 m2
VENTE - Maison 4 pièces de 110 m² à Bréchaumont (68210)
Idéalement située - Maison neuve familiale
À Bréchaumont, dans un quartier résidentiel prisé, à proximité de la Suisse, de l'Allemagne et à quelques kilomètres de Mulhouse, Maisons Brand Mulhouse vous présente cette maison neuve de 4 pièces, offrant confort, luminosité et fonctionnalité.
Édifiée sur un terrain de 1 500 m², cette maison bénéficie d'un environnement spacieux et agréable, parfait pour une vie familiale de qualité.
Elle se compose de :
Trois chambres, idéales pour accueillir toute la famille
Une pièce de vie lumineuse avec cuisine ouverte
Une salle de bains fonctionnelle
Deux niveaux offrant une séparation claire entre espaces jour et nuit
L'emplacement est à la fois calme et pratique :
Accès rapide à l'autoroute A36 (environ 7 km)
Commodités à proximité avec un commerce
Secteur résidentiel apprécié pour sa tranquillité et sa qualité de vie
💰 Prix de vente : 355 000 € (maison + terrain)
📞 Pour toute information complémentaire, étude personnalisée ou modalités de vente, contactez :
François BUCHWALTER - 06 42 62 67 64
Mentions légales
Terrain proposé par un partenaire foncier selon disponibilités et autorisation de publicité au prix de 130 000 €. Hors droit d'enregistrement et frais de notaire. Terrain + Maison proposés au prix de 355 000 € (Hors branchements et raccordements, papiers peints, peintures, revêtement de sol dans les chambres. Tarif modifiable sans préavis). Etiquette énergie : A. Différents modèles disponibles pour ce terrain. Assurances et garanties du constructeur (RC professionnelle, décennale, dommage ouvrage, garantie de remboursement de l'acompte, livraison à prix et délai convenu) : https://www.maisonsbrand.fr/informations-legales/.Agence BRAND Maisons Individuelles de Mulhouse (68100)
- Téléphone :
- 03 89 41 28 88
- Adressse :
- 62 rue Jacques Mugnier
68100 Mulhouse, France
