Maison neuve à
Brécy (18220) Référence : SG2395786_1

Prix du projet : Maison avec Terrain

prix 154 793 €

  • 3 pièces
  • 2 chambres
  • Surface maison 70 m2

VENTE : maison de 3 pièces (70 m²) à Brécy
IDÉALEMENT SITUÉE - MAISON 3 PIÈCES NEUVE
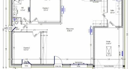
À deux pas de Bourges, nous sommes ravis de vous présenter cette maison de 3 pièces de plain-pied de 70 m² idéalement située dans Brécy (18220).
Son intérieur propose deux chambres, une cuisine et une salle de bains. Cette maison est neuve.
Le terrain du bien est de 1 047 m².
La maison est située dans un quartier recherché. On y trouve une école primaire. Il y a un accès à la nationale N142 à 16 km. On trouve un tennis dans les environs.
Son prix de vente est de 154 793 €.
Contactez Fabien HELLELI (tél : 02-48-50-26-25) pour tout renseignement sur la maison ou sur les démarches à suivre. Maisons Bruno Petit MJB Bourges est là pour vous accompagner dans tous vos projets immobiliers.

Mentions légales

Terrain proposé par un partenaire foncier selon disponibilités et autorisation de publicité au prix de 23 893 €. Hors droit d'enregistrement et frais de notaire. Terrain + Maison proposés au prix de 154 793 € (Hors branchements et raccordements, papiers peints, peintures, revêtement de sol dans les chambres. Tarif modifiable sans préavis). Etiquette énergie : A. Différents modèles disponibles pour ce terrain. Assurances et garanties du constructeur (RC professionnelle, décennale, dommage ouvrage, garantie de remboursement de l'acompte, livraison à prix et délai convenu) : https://www.maisons-brunopetit.fr/mentions-legales/.

Contactez l'agence de Bourges

02 48 50 26 25

    * Champs obligatoires

    Vos informations sont traitées par HEXAOM et transmises à un conseiller commercial qui vous contactera afin de répondre à votre demande. Les plans et images présentés sur notre site sont la propriété d’HEXAOM et ne peuvent pas être reproduits sans son accord. Pour retrouver notre politique de protection des données personnelles et exercer vos droits conformément à la « loi informatique et liberté » cliquez-ici.