Maison neuve à
Brécy (18220) Référence : SG2395850_6

Prix du projet : Maison avec Terrain

prix 154 318 €

  • 3 pièces
  • 2 chambres
  • Surface maison 70 m2

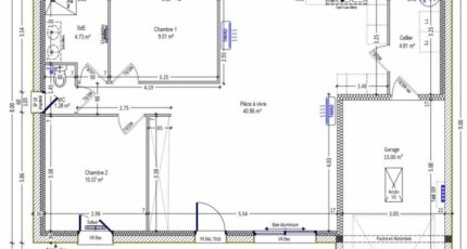
Maison de 3 pièces (70 m²) à vendre à Brécy
IDÉALEMENT SITUÉE - MAISON 3 PIÈCES NEUVE
À vendre à 19 km de Bourges, idéalement située dans Brécy (18220), Maisons Bruno Petit MJB Bourges vous propose cette maison de 3 pièces de plain-pied de 70 m².
Conçue de plain-pied, elle compte deux chambres, une cuisine et une salle de bains. Cette maison est neuve.
Le terrain du bien est de 1 022 m².
Cette maison est située dans un quartier recherché. On y trouve une école primaire. La nationale N142 est accessible à 16 km. On trouve un tennis à proximité du logement.
Elle est proposée à l'achat pour 154 318 €.
Contactez Fabien HELLELI (02-48-50-26-25) pour plus de renseignements sur la maison. Concrétisez vos projets immobiliers avec Maisons Bruno Petit MJB Bourges.

Mentions légales

Terrain proposé par un partenaire foncier selon disponibilités et autorisation de publicité au prix de 23 418 €. Hors droit d'enregistrement et frais de notaire. Terrain + Maison proposés au prix de 154 318 € (Hors branchements et raccordements, papiers peints, peintures, revêtement de sol dans les chambres. Tarif modifiable sans préavis). Etiquette énergie : A. Différents modèles disponibles pour ce terrain. Assurances et garanties du constructeur (RC professionnelle, décennale, dommage ouvrage, garantie de remboursement de l'acompte, livraison à prix et délai convenu) : https://www.maisons-brunopetit.fr/mentions-legales/.

Contactez l'agence de Bourges

02 48 50 26 25

    * Champs obligatoires

    Vos informations sont traitées par HEXAOM et transmises à un conseiller commercial qui vous contactera afin de répondre à votre demande. Les plans et images présentés sur notre site sont la propriété d’HEXAOM et ne peuvent pas être reproduits sans son accord. Pour retrouver notre politique de protection des données personnelles et exercer vos droits conformément à la « loi informatique et liberté » cliquez-ici.