Maison neuve à
Brem-sur-Mer (85470) Référence : NR2237499_3

Prix du projet : Maison avec Terrain

prix 212 900 €

  • 2 pièces
  • 2 chambres
  • Surface maison 61 m2

****PROCHE DU CENTRE ET DE LA MER********

VENTE : maison F2 (61 m²) à Brem-sur-Mer
IDÉALEMENT SITUÉE - MAISON 2 PIÈCES NEUVE
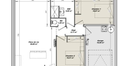
En vente sur le littoral atlantique et à quelques kilomètres de La Roche-sur-Yon, nous vous présentons, idéalement située dans Brem-sur-Mer (85470), cette maison de 2 pièces de plain-pied de 61 m² et de 443 m² de terrain. Son intérieur dispose de deux chambres, d'une cuisine et d'une salle de bains.
La maison est neuve.
Cette propriété est située dans un secteur prisé. Il y a l'École Primaire Privée Notre Dame de l'Espérance et l'École Primaire Publique Sol et Vent à moins de 10 minutes à pied. Niveau transports, on trouve la gare Olonne-sur-Mer à moins de 10 minutes en voiture. Il y a un tennis, des commerces, une boulangerie, un supermarché, une boucherie-charcuterie et une épicerie à proximité du logement. Enfin, le marché Rue de l'Océan anime les environs.
Son prix de vente est de 212 900 €.
Contactez notre agence (Nicolas RISSELIN : 06-80-33-03-82) pour tout renseignement sur la maison ou sur les modalités de vente.


****PROCHE DU CENTRE ET DE LA MER********

Mentions légales

Terrain proposé par un partenaire foncier selon disponibilités et autorisation de publicité au prix de 89 000 €. Hors droit d'enregistrement et frais de notaire. Maison proposée, avec un contrat de construction de maison individuelle, dans le cadre de la loi du 19/12/1990, au prix de 123 900 € (Hors branchements et raccordements, papiers peints, peintures, revêtement de sol dans les chambres, qui sont chiffrés dans les travaux qui restent à charge du client. Tarif modifiable sans préavis). Étiquette énergie : A. Différents modèles disponibles pour ce terrain. Assurances et garanties du constructeur comprises (RC professionnelle, décennale, dommage ouvrage).

Contactez l'agence de Saint-Gilles-Croix-de-Vie

02 51 55 34 29

    * Champs obligatoires

    Vos informations sont traitées par HEXAOM et transmises à un conseiller commercial qui vous contactera afin de répondre à votre demande. Les plans et images présentés sur notre site sont la propriété d’HEXAOM et ne peuvent pas être reproduits sans son accord. Pour retrouver notre politique de protection des données personnelles et exercer vos droits conformément à la « loi informatique et liberté » cliquez-ici.