Maison neuve à
Brem-sur-Mer (85470) Référence : NR2391054_1

Prix du projet : Maison avec Terrain

prix 192 900 €

  • 2 pièces
  • 1 chambre
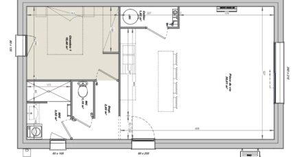
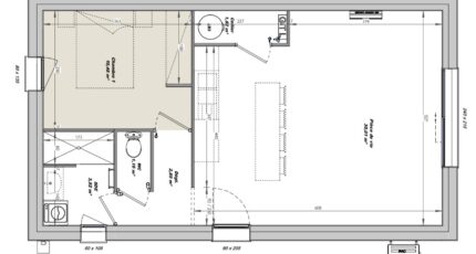
  • Surface maison 50 m2

VENTE : maison de 2 pièces (50 m²) à Brem-sur-Mer
PROCHE DE LA ROCHE-SUR-YON - MAISON 2 PIÈCES NEUVE
À vendre sur la côte atlantique et à quelques kilomètres de La Roche-sur-Yon, nous vous proposons cette maison de 2 pièces de plain-pied de 50 m² et de 389 m² de terrain à Brem-sur-Mer (85470).
Elle offre une chambre, une cuisine et une salle de bains. La maison est neuve.
L'École Primaire Privée Notre Dame de l'Espérance et l'École Primaire Publique Sol et Vent sont implantées à moins de 10 minutes à pied. Niveau transports, on trouve la gare Olonne-sur-Mer à moins de 10 minutes en voiture. Il y a un tennis, des commerces, une boulangerie, un supermarché, une épicerie et une boucherie-charcuterie dans les environs. Enfin, le marché Rue de l'Océan anime le quartier.
Elle est proposée à l'achat pour 192 900 €.
Contactez Nicolas RISSELIN (tél : 06-80-33-03-82) pour tout renseignement sur cette maison.

Mentions légales

Terrain proposé par un partenaire foncier selon disponibilités et autorisation de publicité au prix de 84 910 €. Hors droit d'enregistrement et frais de notaire. Terrain + Maison proposés au prix de 192 900 € (Hors branchements et raccordements, papiers peints, peintures, revêtement de sol dans les chambres. Tarif modifiable sans préavis). Etiquette énergie : A. Différents modèles disponibles pour ce terrain. Assurances et garanties du constructeur (RC professionnelle, décennale, dommage ouvrage, garantie de remboursement de l'acompte, livraison à prix et délai convenu) : https://www.lmp-constructeur.com/mentions-legales/.

Contactez l'agence de Saint-Gilles-Croix-de-Vie

02 51 55 34 29

    * Champs obligatoires

    Vos informations sont traitées par HEXAOM et transmises à un conseiller commercial qui vous contactera afin de répondre à votre demande. Les plans et images présentés sur notre site sont la propriété d’HEXAOM et ne peuvent pas être reproduits sans son accord. Pour retrouver notre politique de protection des données personnelles et exercer vos droits conformément à la « loi informatique et liberté » cliquez-ici.