Maison neuve à
Brest
(29200) Référence :
JR2455351_4
Prix du projet : Maison avec Terrain
prix 365 000 €
- 5 pièces
- 4 chambres
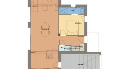
- Surface maison 105 m2
Brest : maison F5 (105 m²) à vendre
MAISON 5 PIÈCES NEUVE
Sur le littoral, découvrez à vendre à Brest (29200), cette maison de 5 pièces de 105 m² et de 475 m² de terrain.
Cette maison compte 2 niveaux. Son intérieur comporte quatre chambres, une cuisine et deux salles de bains.
Elle est à vendre pour la somme de 365 000 €.
Contactez Jean ROPERS pour toute information sur la maison. Maisons de l'Avenir Guipavas vous accompagne à toutes les étapes de votre projet et dans toutes vos démarches.
Mentions légales
Terrain proposé par un partenaire foncier selon disponibilités et autorisation de publicité au prix de 105 000 €. Hors droit d'enregistrement et frais de notaire. Terrain + Maison proposés au prix de 365 000 € (Hors branchements et raccordements, papiers peints, peintures, revêtement de sol dans les chambres. Tarif modifiable sans préavis). Etiquette énergie : A. Différents modèles disponibles pour ce terrain. Assurances et garanties du constructeur (RC professionnelle, décennale, dommage ouvrage, garantie de remboursement de l'acompte, livraison à prix et délai convenu) : https://www.maisonsdelavenir.com/mentions-legales/.Agence Maisons de l'Avenir de Guipavas (29490)
- Téléphone :
- 02 98 03 90 90
- Adressse :
- 10 Rue de Poul Ar Feunteun
29490 Guipavas, France
