Maison neuve à
Brest
(29200) Référence :
JR2469020_3
Prix du projet : Maison avec Terrain
prix 368 700 €
- 5 pièces
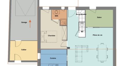
- 3 chambres
- Surface maison 95 m2
Brest - Lambézellec, à 1 minute des commerces. Une opportunité rare sur le secteur. Maison contemporaine de 90 m² avec garage, offrant 2 chambres à l'étage et une belle pièce de vie lumineuse avec une chambre au rez-de-chaussée. Un agencement moderne et fonctionnel, idéal pour une vie de famille, dans un environnement calme et recherché sur un terrain de 500 m².
Projet entièrement personnalisable selon vos envies et votre mode de vie.
Prix : 368 700 €.
Jean Ropers vous accompagne pour concevoir et réaliser votre maison. Une opportunité confidentielle... qui ne le restera pas longtemps
Mentions légales
Terrain proposé par un partenaire foncier selon disponibilités et autorisation de publicité au prix de 128 000 €. Hors droit d'enregistrement et frais de notaire. Terrain + Maison proposés au prix de 368 700 € (Hors branchements et raccordements, papiers peints, peintures, revêtement de sol dans les chambres. Tarif modifiable sans préavis). Etiquette énergie : A. Différents modèles disponibles pour ce terrain. Assurances et garanties du constructeur (RC professionnelle, décennale, dommage ouvrage, garantie de remboursement de l'acompte, livraison à prix et délai convenu) : https://www.maisonsdelavenir.com/mentions-legales/.Agence Maisons de l'Avenir de Guipavas (29490)
- Téléphone :
- 02 98 03 90 90
- Adressse :
- 10 Rue de Poul Ar Feunteun
29490 Guipavas, France
