Maison neuve à
Bretteville-l'Orgueilleuse
(14740) Référence :
JS2484818_1
Prix du projet : Maison avec Terrain
prix 234 000 €
- 5 pièces
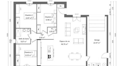
- 3 chambres
- Surface maison 95 m2
VENTE : maison de 5 pièces (95 m²) à Bretteville-l'Orgueilleuse
IDÉALEMENT SITUÉE - MAISON 5 PIÈCES NEUVE
À vendre : à deux pas de Caen, nous vous présentons cette maison de 5 pièces de plain-pied de 95 m² et de 333 m² de terrain idéalement située dans Bretteville-l'Orgueilleuse (14740).
Son intérieur dispose de trois chambres, d'une cuisine et de deux salles de bains. Cette maison est neuve.
La maison est située dans un secteur recherché. On trouve l'École Maternelle les Lilas et l'École Élémentaire les Coquelicots à moins de 10 minutes à pied. Niveau transports, il y a la gare Bretteville-Norrey juste à côté. On trouve un accès à la nationale N13 à 1 km. On trouve un tennis, une bibliothèque, quatre commerces, une boucherie-charcuterie et un bureau de poste dans les environs.
Elle est proposée à l'achat pour 234 000 €.
Contactez Emilie HUE (06-29-81-46-66) pour plus d'informations sur la propriété. Concrétisez vos projets immobiliers avec Maisons France Confort Bayeux.
Annonce proposée par un Agent Commercial Partenaire.
Mentions légales
Terrain proposé par un partenaire foncier selon disponibilités et autorisation de publicité au prix de 79 000 €. Hors droit d'enregistrement et frais de notaire. Terrain + Maison proposés au prix de 234 000 € (Hors branchements et raccordements, papiers peints, peintures, revêtement de sol dans les chambres. Tarif modifiable sans préavis). Etiquette énergie : A. Différents modèles disponibles pour ce terrain. Assurances et garanties du constructeur (RC professionnelle, décennale, dommage ouvrage, garantie de remboursement de l'acompte, livraison à prix et délai convenu) : https://www.maisons-france-confort.fr/mentions-legales/. HEXAOM Services est enregistré auprès de l'ORIAS en tant que Courtier en financement, Niveau 1, sous le numéro 14001345.Agence Maisons France Confort de Bayeux (14400)
- Téléphone :
- 02 31 51 20 91
- Adressse :
- 2, rue Saint Loup
14400 Bayeux, France
