Maison neuve à
Bretteville-l'Orgueilleuse
(14740) Référence :
JS2484818_9
Prix du projet : Maison avec Terrain
prix 249 000 €
- 7 pièces
- 5 chambres
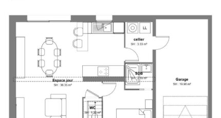
- Surface maison 102 m2
MAISON NEUVE 102 m² - EMPLACEMENT IDÉAL À BRETTEVILLE-L'ORGUEILLEUSE
PRÉSENTATION DU BIEN
À Bretteville-l'Orgueilleuse, découvrez ce projet de maison neuve de 102 m² sur un terrain de 333 m², dans un secteur agréable et bien situé.
Répartie sur 2 niveaux, elle propose 5 chambres, 2 salles de bains et une cuisine à aménager selon vos envies.
Un agencement spacieux et pratique, idéal pour une vie de famille confortable.
Le terrain de 333 m² permet de profiter d'un extérieur facile à aménager selon vos besoins.
ENVIRONNEMENT
Située à environ 15 km de la Manche, la commune bénéficie d'un cadre de vie pratique et recherché.
La gare de Bretteville-Norrey est à moins d'1 km, avec également plusieurs lignes de bus (Nomad 114 et 130) à proximité.
Écoles maternelle et élémentaire sont accessibles à pied, tout comme les commerces du quotidien.
NOUS CONTACTER
Prix : 249 000 €
Contact : Emilie HUE - Maisons France Confort Bayeux
📞 06 29 81 46 66
Concrétisez votre projet de construction à Bretteville-l'Orgueilleuse dès maintenant.
Annonce proposée par un Agent Commercial Partenaire.
Mentions légales
Terrain proposé par un partenaire foncier selon disponibilités et autorisation de publicité au prix de 79 000 €. Hors droit d'enregistrement et frais de notaire. Terrain + Maison proposés au prix de 249 000 € (Hors branchements et raccordements, papiers peints, peintures, revêtement de sol dans les chambres. Tarif modifiable sans préavis). Etiquette énergie : A. Différents modèles disponibles pour ce terrain. Assurances et garanties du constructeur (RC professionnelle, décennale, dommage ouvrage, garantie de remboursement de l'acompte, livraison à prix et délai convenu) : https://www.maisons-france-confort.fr/mentions-legales/. HEXAOM Services est enregistré auprès de l'ORIAS en tant que Courtier en financement, Niveau 1, sous le numéro 14001345.Agence Maisons France Confort de Bayeux (14400)
- Téléphone :
- 02 31 51 20 91
- Adressse :
- 2, rue Saint Loup
14400 Bayeux, France
