Maison neuve à 
  Bretx
 (31530)  Référence :
 CC2300852_1 
Prix du projet : Maison avec Terrain
prix 353 355 €
- 4 pièces
- 3 chambres
- Surface maison 110 m2
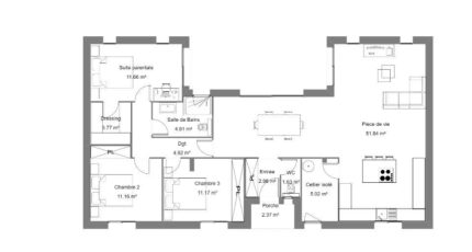
VENTE d'une maison de 4 pièces (110 m²) à Bretx
PROCHE DE TOULOUSE - MAISON 4 PIÈCES NEUVE
À deux pas de Toulouse, Maisons France Confort Tournefeuille vous propose à vendre à Bretx (31530), cette maison de 4 pièces de plain-pied de 110 m² et de 1 000 m² de terrain.
Conçue de plain-pied, elle inclut trois chambres, une cuisine et une salle de bains. Cette maison est neuve.
Son prix de vente est de 353 355 €.
Contactez nous pour toute information sur la maison ou sur les démarches à suivre.
Faites de vos projets immobiliers une réalité avec Maisons France Confort Tournefeuille 05.61.16.47.77.
Hors frais annexes.
Annonce proposée par un Agent Commercial Partenaire.
Mentions légales
Terrain proposé par un partenaire foncier selon disponibilités et autorisation de publicité au prix de 129 900 €. Hors droit d'enregistrement et frais de notaire. Maison proposée, avec un contrat de construction de maison individuelle, dans le cadre de la loi du 19/12/1990, au prix de 223 455 € (Hors branchements et raccordements, papiers peints, peintures, revêtement de sol dans les chambres, qui sont chiffrés dans les travaux qui restent à charge du client. Tarif modifiable sans préavis). Étiquette énergie : A. Différents modèles disponibles pour ce terrain. Assurances et garanties du constructeur comprises (RC professionnelle, décennale, dommage ouvrage).Agence Maisons France Confort de Tournefeuille (31170)
- Téléphone :
- 05 61 16 47 77
- Adressse :
-  114 chemin de Larramet
 31170 Tournefeuille, France
 
  
  
  
  
  
  
 