Maison neuve à
Bretx
(31530) Référence :
SP2492636_2
Prix du projet : Maison avec Terrain
prix 269 900 €
- 5 pièces
- 4 chambres
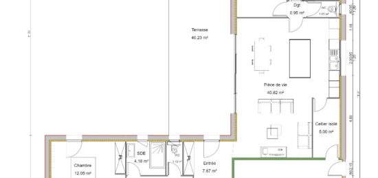
- Surface maison 98 m2
Bretx : maison F5 (98 m²) à vendre
MAISON 5 PIÈCES NEUVE - PROCHE DE TOULOUSE
À vendre : située à quelques kilomètres de Toulouse, venez découvrir cette maison de 5 pièces de 98 m² à Bretx (31530). Elle compte quatre chambres, une cuisine et une salle de bains.
Le terrain du bien est de 545 m².
Cette maison possède 2 niveaux. Elle est neuve.
L'École Élémentaire Publique est implantée à moins de 10 minutes à pied, tout comme une crèche. Côté transports en commun, on trouve la gare Mérenvielle à moins de 10 minutes en voiture. Quatre autoroutes et la nationale N124 sont accessibles à moins de 19 km. Il y a deux commerces à quelques minutes à peine.
Son prix de vente est de 269 900 €.
Prenez contact avec nous pour plus de renseignements sur la maison et sur les démarches à suivre. Maisons France Confort Tournefeuille est là pour vous accompagner à toutes les étapes de votre projet.
Annonce proposée par un Agent Commercial Partenaire.
Mentions légales
Terrain proposé par un partenaire foncier selon disponibilités et autorisation de publicité au prix de 74 000 €. Hors droit d'enregistrement et frais de notaire. Terrain + Maison proposés au prix de 269 900 € (Hors branchements et raccordements, papiers peints, peintures, revêtement de sol dans les chambres. Tarif modifiable sans préavis). Etiquette énergie : A. Différents modèles disponibles pour ce terrain. Assurances et garanties du constructeur (RC professionnelle, décennale, dommage ouvrage, garantie de remboursement de l'acompte, livraison à prix et délai convenu) : https://www.maisons-france-confort.fr/mentions-legales/. HEXAOM Services est enregistré auprès de l'ORIAS en tant que Courtier en financement, Niveau 1, sous le numéro 14001345.Agence Maisons France Confort de Tournefeuille (31170)
- Téléphone :
- 05 61 16 47 77
- Adressse :
- 114 chemin de Larramet
31170 Tournefeuille, France
