Maison neuve à 
  Breuillet
 (17920)  Référence :
 PEH2266091_1 
Prix du projet : Maison avec Terrain
prix 223 530 €
- 2 pièces
- 2 chambres
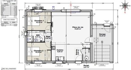
- Surface maison 70 m2
A Breuillet, au centre ville, à 100 m des écoles maternelles et primaires, nous proposons cette maison RE 2020 de plain-pied de 70 m² avec une pièce de vie traversante, 2 chambres, salle d'eau avec wc intégré, garage.
Prenez contact avec Pierre-Emmanuel HÜE (Bermax Construction Vaux-sur-Mer) au 06.25.78.28.20 pour tout renseignement complémentaire.
Mentions légales
Terrain proposé par un partenaire foncier selon disponibilités et autorisation de publicité au prix de 79 980 €. Hors droit d'enregistrement et frais de notaire. Maison proposée, avec un contrat de construction de maison individuelle, dans le cadre de la loi du 19/12/1990, au prix de 143 550 € (Hors branchements et raccordements, papiers peints, peintures, revêtement de sol dans les chambres, qui sont chiffrés dans les travaux qui restent à charge du client. Tarif modifiable sans préavis). Étiquette énergie : A. Différents modèles disponibles pour ce terrain. Assurances et garanties du constructeur comprises (RC professionnelle, décennale, dommage ouvrage).Agence Bermax de Vaux-sur-Mer (17640)
- Téléphone :
- 05 46 38 01 49
- Adressse :
-  19 Avenue Malakoff
 17640 Vaux-sur-Mer, France
 
  
  
  
  
  
 