Maison neuve à
Breuillet (17920) Référence : VC2495715_3

Prix du projet : Maison avec Terrain

prix 367 000 €

  • 4 pièces
  • 3 chambres
  • Surface maison 90 m2

Véronique CANTEAU des maisons MCA de Royan, vous propose d'adapter le modèle Citadine sur ce terrain d'environ 1140 m2, idéalement situé sur la commune de Breuillet à proximité des plages et de Royan.
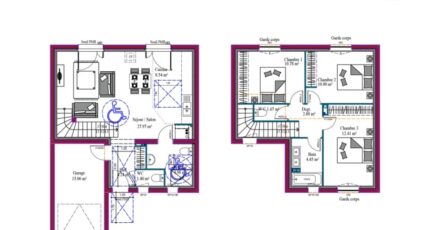
La maison à étage Citadine est la construction parfaite pour s'adapter aux espaces urbains.

Au rez-de-chaussée, elle offre un beau volume de plus de 37 m2, lumineux et convivial avec ses deux grandes baies vitrées, son salon-séjour avec cuisine ouverte.
L'étage est consacré à l'espace nuit avec les 3 chambres et la salle de bain.
Cette maison très agréable à vivre est entièrement personnalisable pour s'adapter à vos envies.
Le prix affiché comprend le terrain, les frais de notaire, et cette maison livrée prête à décorer.

Contactez vite votre conseillère Véronique CANTEAU au O7.86.18.39.78 à l'agence MCA de Royan, afin qu'elle vous guide dans les démarches et vous accompagne dans ce projet de construction personnalisé, aux normes RE2020.

Mentions légales

Idée de réalisation en modèle prêt à décorer sur l'un de nos terrains partenaires, sous réserve de disponibilités. Voir détails en agence.

Contactez l'agence de Royan

05 46 02 65 77

    * Champs obligatoires

    Vos informations sont traitées par HEXAOM et transmises à un conseiller commercial qui vous contactera afin de répondre à votre demande. Les plans et images présentés sur notre site sont la propriété d’HEXAOM et ne peuvent pas être reproduits sans son accord. Pour retrouver notre politique de protection des données personnelles et exercer vos droits conformément à la « loi informatique et liberté » cliquez-ici.