Maison neuve à
Breuillet
(17920) Référence :
VC2495715_4
Prix du projet : Maison avec Terrain
prix 416 970 €
- 7 pièces
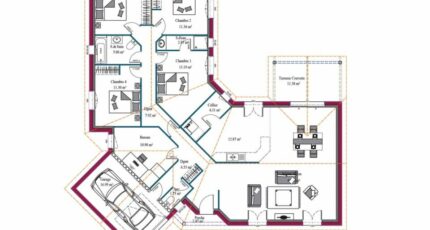
- 4 chambres
- Surface maison 146 m2
Véronique CANTEAU des maisons MCA Royan, vous propose d'adapter le modèle Plaisir Sud, sur ce terrain de 1135 m2, idéalement situé, proche des commerces, sur la commune de Breuillet.
Ce modèle de maison de plain-pied de 145 m² possède de nombreux atouts qui ne vous laisseront pas indifférent.
Tout d'abord des espaces généreux : une pièce de vie (cuisine ouverte/séjour) de plus de 60 m², prolongée par une terrasse couverte de 11 m² pour profiter de l'extérieur dès l'arrivée des beaux jours.
4 belles chambres de 11 à 13 m², dont une suite parentale avec salle d'eau. Toutes les chambres sont équipées de rangements.
Un grand bureau de 11 m², idéal pour le home office, une salle de jeu pour les enfants ou pour vos activités manuelles.
Cette maison est personnalisable pour s'adapter au mode de vie des grandes familles.
Vous souhaitez revoir l'agencement d'une pièce ? C'est possible car ce modèle est 100% personnalisable !
Le prix affiché comprend le terrain, les frais de notaire, et cette maison livrée prête à décorer.
Contactez vite votre conseillère Véronique CANTEAU au O7.86.18.39.78 à l'agence MCA de Royan, afin qu'elle vous guide dans les démarches et vous accompagne dans ce projet de construction personnalisé, aux normes RE2020.
Mentions légales
Idée de réalisation en modèle prêt à décorer sur l'un de nos terrains partenaires, sous réserve de disponibilités. Voir détails en agence.Agence Maisons de la Côte Atlantique de Royan (17200)
- Téléphone :
- 05 46 02 65 77
- Adressse :
- 75 Cours de l'Europe
17200 Royan, France
