Maison neuve à
Bréval (78980) Référence : MB2416510_4

Prix du projet : Maison avec Terrain

prix 264 490 €

  • 6 pièces
  • 4 chambres
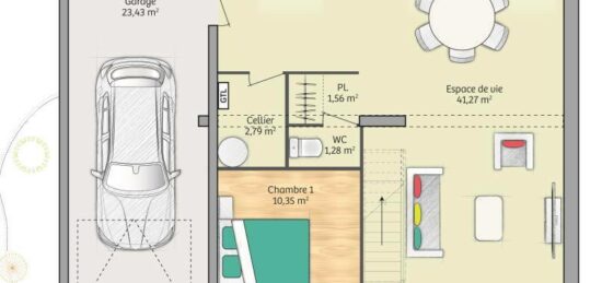
  • Surface maison 91 m2

VENTE d'une maison de 6 pièces (91 m²) à Bréval
EMPLACEMENT PRIVILÉGIÉ - MAISON 6 PIÈCES NEUVE
À 30 km d'Évreux, nous vous présentons cette maison de 6 pièces de 91 m² et de 535 m² de terrain bénéficiant d'un emplacement d'exception dans Bréval (78980). Elle dispose de quatre chambres, d'une cuisine et d'une salle de bains.
C'est une maison de 2 niveaux. Elle est neuve.
Cette maison se trouve dans un secteur convoité. Il y a le Collège les Nénuphars, l'École Élémentaire les Mille Couleurs et l'École Maternelle la Ribambelle à moins de 10 minutes à pied. Côté transports, on trouve la gare Bréval juste à côté. Il y a un tennis, des commerces, une boulangerie, un supermarché, un bureau de poste et deux boucheries-charcuteries dans les environs.
Elle est à vendre pour la somme de 264 490 €.
N'hésitez pas à prendre contact avec Mickael BESNARD (06-15-50-56-87) pour plus de renseignements sur la maison, sur les modalités de vente ou sur les démarches à suivre. Concrétisez vos projets immobiliers avec Maisons France Confort Vernon.

Annonce proposée par un Agent Commercial Partenaire.

Mentions légales

Terrain proposé par un partenaire foncier selon disponibilités et autorisation de publicité au prix de 97 200 €. Hors droit d'enregistrement et frais de notaire. Terrain + Maison proposés au prix de 264 490 € (Hors branchements et raccordements, papiers peints, peintures, revêtement de sol dans les chambres. Tarif modifiable sans préavis). Etiquette énergie : A. Différents modèles disponibles pour ce terrain. Assurances et garanties du constructeur (RC professionnelle, décennale, dommage ouvrage, garantie de remboursement de l'acompte, livraison à prix et délai convenu) : https://www.maisons-france-confort.fr/mentions-legales/. HEXAOM Services est enregistré auprès de l'ORIAS en tant que Courtier en financement, Niveau 1, sous le numéro 14001345.

Contactez l'agence de Vernon

02 32 51 45 05

    * Champs obligatoires

    Vos informations sont traitées par HEXAOM et transmises à un conseiller commercial qui vous contactera afin de répondre à votre demande. Les plans et images présentés sur notre site sont la propriété d’HEXAOM et ne peuvent pas être reproduits sans son accord. Pour retrouver notre politique de protection des données personnelles et exercer vos droits conformément à la « loi informatique et liberté » cliquez-ici.