Maison neuve à
Bréviandes
(10450) Référence :
AC2442882_2
Prix du projet : Maison avec Terrain
prix 320 000 €
- 6 pièces
- 5 chambres
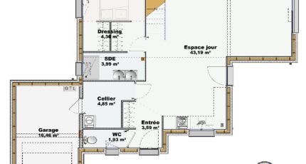
- Surface maison 114 m2
VENTE : maison T6 (114 m²) à Bréviandes
MAISON 6 PIÈCES NEUVE - PROCHE DE TROYES
À vendre à 4 km de Troyes, à Bréviandes (10450), Maisons France Confort Troyes vous propose cette maison de 6 pièces de 114 m² et de 539 m² de terrain.
Il s'agit d'une maison de 2 niveaux. Son intérieur comporte cinq chambres, une cuisine et deux salles de bains. Cette maison est neuve.
Il y a l'École Élémentaire Jean Monnet et l'École Maternelle Jean Monnet à moins de 10 minutes à pied. Niveau transports, on trouve la gare Troyes à moins de 10 minutes en voiture. Il y a trois commerces et une boucherie-charcuterie à proximité du bien.
Elle est proposée à l'achat pour 320 000 €.
Contactez notre agence (Alexandra COGLIATI : 06-45-01-83-12) pour plus de renseignements sur la maison. Concrétisez vos projets immobiliers avec Maisons France Confort Troyes.
Annonce proposée par un Agent Commercial Partenaire.
Mentions légales
Terrain proposé par un partenaire foncier selon disponibilités et autorisation de publicité au prix de 70 070 €. Hors droit d'enregistrement et frais de notaire. Terrain + Maison proposés au prix de 320 000 € (Hors branchements et raccordements, papiers peints, peintures, revêtement de sol dans les chambres. Tarif modifiable sans préavis). Etiquette énergie : A. Différents modèles disponibles pour ce terrain. Assurances et garanties du constructeur (RC professionnelle, décennale, dommage ouvrage, garantie de remboursement de l'acompte, livraison à prix et délai convenu) : https://www.maisons-france-confort.fr/mentions-legales/. HEXAOM Services est enregistré auprès de l'ORIAS en tant que Courtier en financement, Niveau 1, sous le numéro 14001345.Agence Maisons France Confort de Troyes (10000)
- Téléphone :
- 03 25 82 69 80
- Adressse :
- 142 Avenue Pierre Brossolette
10000 Troyes, France
