Maison neuve à
Brie-Comte-Robert
(77170) Référence :
FS2465984_1
Prix du projet : Maison avec Terrain
prix 329 000 €
- 5 pièces
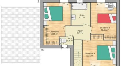
- 3 chambres
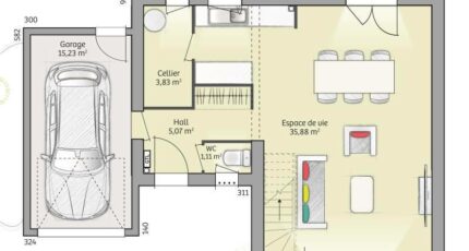
- Surface maison 90 m2
Brie-Comte-Robert : maison de 5 pièces (90 m²) à vendre
CENTRE-VILLE - MAISON 5 PIÈCES NEUVE
Au pied de la station Combs-la-Ville-Quincy du RER D (30 min de Paris), nous vous présentons cette maison de 5 pièces de 90 m² et de 498 m² de terrain en vente à Brie-Comte-Robert (77170), en centre-ville. Elle dispose de trois chambres, d'une cuisine et d'une salle de bains.
Cette maison comporte 2 niveaux. Elle est neuve.
Cinq établissements scolaires se trouvent à moins de 10 minutes à pied. Niveau transports, il y a les lignes de RER D, E et A ainsi que sept gares à moins de 10 minutes en voiture. On trouve une bibliothèque, des commerces, une boucherie-charcuterie, quatre épiceries et un bureau de poste dans les environs.
Son prix de vente est de 329 000 €.
Contactez Félix SOUMARMON (06-10-24-97-84) pour tout renseignement sur la propriété ou sur les démarches à suivre.
Annonce proposée par un Agent Commercial Partenaire.
Mentions légales
Terrain proposé par un partenaire foncier selon disponibilités et autorisation de publicité au prix de 165 000 €. Hors droit d'enregistrement et frais de notaire. Terrain + Maison proposés au prix de 329 000 € (Hors branchements et raccordements, papiers peints, peintures, revêtement de sol dans les chambres. Tarif modifiable sans préavis). Etiquette énergie : A. Différents modèles disponibles pour ce terrain. Assurances et garanties du constructeur (RC professionnelle, décennale, dommage ouvrage, garantie de remboursement de l'acompte, livraison à prix et délai convenu) : https://www.maisons-france-confort.fr/mentions-legales/. HEXAOM Services est enregistré auprès de l'ORIAS en tant que Courtier en financement, Niveau 1, sous le numéro 14001345.Agence Maisons France Confort de Magny-le-Hongre (77700)
- Téléphone :
- 01 84 80 92 96
- Adressse :
- 11 rue de Courtalin
77700 Magny-le-Hongre, France
