Maison neuve à
Bruges (33520) Référence : JFB2421853_1

Prix du projet : Maison avec Terrain

prix 775 000 €

  • 6 pièces
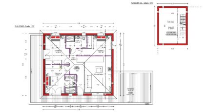
  • 4 chambres
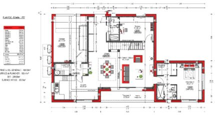
  • Surface maison 165 m2

VENTE d'une maison contemporaine de 165m² (Etage partiel) à Bruges
QUARTIER RECHERCHÉ
Cette maison contemporaine , exposée au sud-ouest, donnant sur un jardin.
Dans un secteur attractif et prisé ce terrain est proche des écoles et des commerces.
Il y a plusieurs établissements scolaires (maternelle, élémentaire, primaire et collège)
à moins de 10 minutes à pied des commerces et transports (Bus tram)
Ce terrain est à vendre pour la somme de 775 000 € FAI Contactez notre agence (Jean-François BREUIL : 06-58-32-28-27) pour tout renseignement sur le terrain ou sur les démarches à suivre.

Mentions légales

Terrain proposé par un partenaire foncier selon disponibilité dans le cadre d’un projet de construction avec Alpha Constructions. Les descriptions, photographies, surfaces et prix illustrant l’annonce sont fournies à titre indicatif et ne sont pas contractuels. Non soumis au DPE. Différents modèles disponibles.

Contactez l'agence de Bordeaux

05 56 80 78 19

    * Champs obligatoires

    Vos informations sont traitées par HEXAOM et transmises à un conseiller commercial qui vous contactera afin de répondre à votre demande. Les plans et images présentés sur notre site sont la propriété d’HEXAOM et ne peuvent pas être reproduits sans son accord. Pour retrouver notre politique de protection des données personnelles et exercer vos droits conformément à la « loi informatique et liberté » cliquez-ici.