Maison neuve à
Brugny-Vaudancourt
(51530) Référence :
NG2297798_8
Prix du projet : Maison avec Terrain
prix 240 000 €
- 5 pièces
- 3 chambres
- Surface maison 90 m2
À Brugny Vaudancourt, maison neuve (normes RE 2020) de 90m2 avec patio.
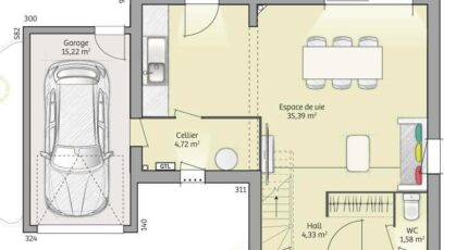
Maison de construction traditionnelle (matériaux de qualité, ossature en brique) de 3 chambres (possibilité d'une quatrième). Le modèle présenté est le modèle Open Nord ETG L GA accès Sud 90 so chic d'une surface habitable de 90m2 et compte une pièce de vie ouverte sur la cuisine, une salle de bain, 3 chambres, avec espace pour les placards, deux wc, un cellier et un garage. Il est possible de personnaliser ces plans afin qu'ils répondent parfaitement à vos attentes.
Terrain constructible de 561m2 entièrement viabilisé à Brugny-Vaudancourt entièrement viabilisé et idéalement situé au calme et proche de toutes les commodités.
Brugny-Vaudancourt est une commune recherchée pour son axe direct et sa proximité avec Epernay, Pierry, Moussy, Magenta, Mardeuil, Chouilly, Mancy, Chavot-Courcourt, Vinay, Saint Martin d'Ablois, Morangis, et Moslins.
Pour plus de renseignements vous pouvez me contacter , Nicolas GUILLAUME de l'agence Maisons France Confort de Cormontreuil au 07.77.79.23.59
Mentions légales
Terrain proposé par un partenaire foncier selon disponibilités et autorisation de publicité au prix de 72 000 €. Hors droit d'enregistrement et frais de notaire. Maison proposée, avec un contrat de construction de maison individuelle, dans le cadre de la loi du 19/12/1990, au prix de 168 000 € (Hors branchements et raccordements, papiers peints, peintures, revêtement de sol dans les chambres, qui sont chiffrés dans les travaux qui restent à charge du client. Tarif modifiable sans préavis). Étiquette énergie : A. Différents modèles disponibles pour ce terrain. Assurances et garanties du constructeur comprises (RC professionnelle, décennale, dommage ouvrage).Agence Maisons France Confort de Cormontreuil (51350)
- Téléphone :
- 03 26 46 40 50
- Adressse :
- 8 rue des rémouleurs
51350 Cormontreuil, France
