Maison neuve à
Brunstatt
(68350) Référence :
CA2448265_4
Prix du projet : Maison avec Terrain
prix 332 000 €
- 4 pièces
- 3 chambres
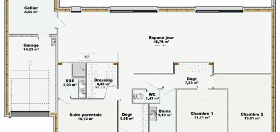
- Surface maison 89 m2
MAISONS BRAND VOUS PROPOSE CETTE FUTUR MAISON A CONSTRUIRE
maison de 89m2 à Brunstatt
IDÉALEMENT SITUÉE - MAISON 4 PIÈCES NEUVE située à quelques kilomètres de l'Allemagne et du Suisse et à 4 km de Mulhouse, idéalement située dans Brunstatt (68350), nous sommes ravis de vous proposer cette maison de 4 pièces de 89 m². Son intérieur comporte 3 chambres, une cuisine ouverte sur séjour et 1 salle de bain.
Le terrain de la propriété est de 1 000 m².
Cette maison est sur 2 niveaux avec garage
Elle se trouve dans un quartier prisé. Il y a cinq établissements scolaires à moins de 10 minutes à pied. Côté transports en commun, on trouve 14 gares à moins de 10 minutes en voiture. Il y a trois tennis, des commerces, un bureau de poste, une supérette et une boucherie-charcuterie à proximité.
Ce projet terrain et maison est au prix de 332.000 €.
Prenez contact avec notre agence MAISONS BRAND (AREND Claire ) pour tout renseignement sur cette maison, sur les modalités de vente et sur les démarches à suivre. Faites de vos projets immobiliers une réalité avec Maisons Brand Mulhouse.
Mentions légales
Terrain proposé par un partenaire foncier selon disponibilités et autorisation de publicité au prix de 140 000 €. Hors droit d'enregistrement et frais de notaire. Terrain + Maison proposés au prix de 332 000 € (Hors branchements et raccordements, papiers peints, peintures, revêtement de sol dans les chambres. Tarif modifiable sans préavis). Etiquette énergie : A. Différents modèles disponibles pour ce terrain. Assurances et garanties du constructeur (RC professionnelle, décennale, dommage ouvrage, garantie de remboursement de l'acompte, livraison à prix et délai convenu) : https://www.maisonsbrand.fr/informations-legales/.Agence BRAND Maisons Individuelles de Mulhouse (68100)
- Téléphone :
- 03 89 41 28 88
- Adressse :
- 62 rue Jacques Mugnier
68100 Mulhouse, France
