Maison neuve à
Brusvily
(22100) Référence :
CR2487538_3
Prix du projet : Maison avec Terrain
prix 327 600 €
- 5 pièces
- 4 chambres
- Surface maison 115 m2
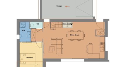
VENTE : maison de 5 pièces (115 m²) à Brusvily
PROCHE DE SAINT-MALO - MAISON 5 PIÈCES NEUVE
En vente : à 22 km de la Manche et à quelques kilomètres de Saint-Malo, Maisons de l'Avenir Pacé vous présente à Brusvily (22100), cette maison de 5 pièces de 115 m² et de 623 m² de terrain. Elle se divise en quatre chambres, une cuisine et deux salles de bains.
Il s'agit d'une maison de 2 niveaux.
Elle est proposée à l'achat pour 327 600 €.
Contactez notre agence (Cyril RENVAZE pour toute question sur la maison, sur les modalités de vente ou sur les démarches à suivre. Maisons de l'Avenir Pacé vous accompagne à toutes les étapes de votre projet et dans tous vos projets immobiliers.
Mentions légales
Terrain proposé par un partenaire foncier selon disponibilités et autorisation de publicité au prix de 59 600 €. Hors droit d'enregistrement et frais de notaire. Terrain + Maison proposés au prix de 327 600 € (Hors branchements et raccordements, papiers peints, peintures, revêtement de sol dans les chambres. Tarif modifiable sans préavis). Etiquette énergie : A. Différents modèles disponibles pour ce terrain. Assurances et garanties du constructeur (RC professionnelle, décennale, dommage ouvrage, garantie de remboursement de l'acompte, livraison à prix et délai convenu) : https://www.maisonsdelavenir.com/mentions-legales/.Agence Maisons de l'Avenir de Pacé (35740)
- Téléphone :
- 02 99 83 07 20
- Adressse :
- 7, rue d'Armor
35740 Pacé, France
