Maison neuve à
Bullion
(78830) Référence :
AD2446359_1
Prix du projet : Maison avec Terrain
prix 415 000 €
- 8 pièces
- 5 chambres
- Surface maison 140 m2
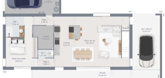
Bullion (78830) - Projet Maison + Terrain - 140 m² - 8 pièces
Projet de construction neuf comprenant terrain + maison à Bullion, en centre‑ville.
Maison R+1 de 140 m², composée de 5 chambres, grand séjour lumineux, cuisine, 2 salles de bains et 2 WC. Plans personnalisables selon vos besoins.
Terrain de 818 m², proche écoles, commerces et RER C (Dourdan‑La‑Forêt à 10 min).
Prix du projet : 415 000 € (terrain + maison, hors frais annexes).
Contact : Amandine DUHAMEL - 06 34 48 03 67
Maisons France Confort - Jouars‑Pontchartrain.
Mentions légales
Terrain proposé par un partenaire foncier selon disponibilités et autorisation de publicité au prix de 170 000 €. Hors droit d'enregistrement et frais de notaire. Terrain + Maison proposés au prix de 415 000 € (Hors branchements et raccordements, papiers peints, peintures, revêtement de sol dans les chambres. Tarif modifiable sans préavis). Etiquette énergie : A. Différents modèles disponibles pour ce terrain. Assurances et garanties du constructeur (RC professionnelle, décennale, dommage ouvrage, garantie de remboursement de l'acompte, livraison à prix et délai convenu) : https://www.maisons-france-confort.fr/mentions-legales/. HEXAOM Services est enregistré auprès de l'ORIAS en tant que Courtier en financement, Niveau 1, sous le numéro 14001345.Agence Maisons France Confort de Jouars-Pontchartrain (78760)
- Téléphone :
- 01 34 81 01 50
- Adressse :
- 3 allée André Le Nôtre
78760 Jouars-Pontchartrain, France
